適「材」適所・適「広」適所・適「光」適所
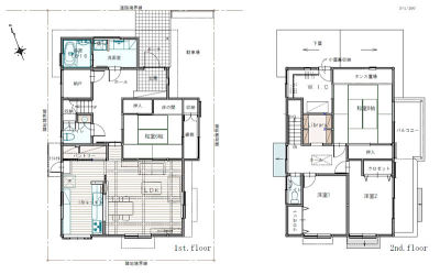
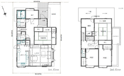
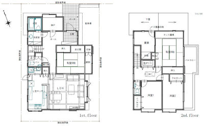
- 物件全体
- ダイニング・リビング
- 洗面
- トイレ
- その他
株式会社シンエイ・シンエイリフォーム
| 建物種別 | 戸建て |
|---|---|
| 改修規模 | 全面リフォーム |
| 築年数 | 築29年 |
| 総工事面積 | 約114m2 |
| 施工期間 | 約105日 |
| 総工事費 | 約1300万円 |
| 地域 | 兵庫県 |
| 家族構成 | 夫婦二人 |
| テーマ | 団らんキッチン、バリアフリー、明るい部屋、広々、その他 |
-
窓の幅を1.0間のものに取替えて外部に庇を設置することにより、適度な光を取り入れる窓になりました。
-
東側の窓の幅も西側と同様に1.0間幅の掃き出し窓に入替えました。お隣のご実家への行き来がスムーズになり、ご高齢のご両親の様子を見に行く動線が短くなりました。
-
対面カウンターのダイニング側には奥様のご趣味であるブリザードフラワーを飾るためにニッチを計画。また、リビングから丸見えだったキッチン内部をタテ格子でゆるやかに仕切り開放感を残しました。
-
L型キッチンをI型に変更し動線を改善。またシステムキッチンの収納は何をどこに収納するかを考えながらプラン。引出しタイプなので使いやすくなりました。全然使用していなかった食洗器はやめて電動昇降乾燥機をご選択。快適に利用されています。
-
キッチンの壁面にはご主人様と楽しむお茶や紅茶をまとめて収納できるコーナーを造りました。ティータイムがグレードアップしそうですね!また窓側の吊戸を無くすことでキッチンの奥まで光が届くようになりました。
-
奥行きの深い並列された収納を一つにまとてパントリーに。一部はをごみ箱スペースとして内部に仕切り壁を設けました。分別ごみも隠す収納でスッキリ!
-
浴室を挟んで西側に2帖の洗面室、北側に3帖の納戸という配置でしたが、納戸と洗面室の位置変えにより3帖広々洗面室が実現。洗濯機も余裕で取り込めました。また引出し型の洗面化粧台は使い勝手が格段に良くなりました。
-
トイレ本体はアラウーノSⅡをご採用。もともと収納スペースだったところを手洗いスペースとして利用。お孫さんたちが利用されても床が水浸しになることはもうありません。下部の配管スペースは収納として開き戸を取付けました。
-
床から天井までたっぷり収納できるライブラリーは、美術書や歴史書の様々な大きさに対応するため可動棚としました。また2階ホールからすぐに入れる配置は、読書好きのご主人様が長居したくなる空間に!
●新築当時は昭和という時代も影響して大工さん主体で計画が進められました。できあがったキッチンは奥様の意見が反映されないものとなっていました。そのため広さはあるものの使い勝手や動線の悪いキッチンを30年ご不便を感じながら使ってこられました。念願のキッチンプランは提案図面やパースによる確認、使い勝手の実演をご一緒したりしながら出来上がりました。●キッチン・リビング・洗面室・トイレ等、光が届かず圧迫感があり閉鎖的だった空間を、明るく開放的なくつろぎ空間とするために、間取り替えや機器等の配置の工夫をしました。また、欲しいところに必要な広さで設置されていなかった収納を、生活動線や使い勝手を考慮しながら適「材」適所の収納に造り替えました。


戸建て住宅の全面リフォーム。M様の一番のご要望は、なんといってもキッチンの使い勝手の悪さを改善することでした。収納は多ければいいというものではない、また空間は広ければいいというものではない、ということは当然のことですが、それによって30年ご不便を感じてこられたM様から生の声をお聞きして、プランニングの大切さをあらためて実感させて頂きました。
リビング南西の窓は幅1.5間あり高さは2.2m。まぶし過ぎて不快感を感じるほどで、始終カーテンを閉めっぱなしに。

窓の幅を1.0間のものに取替えて外部に庇を設置することにより、適度な光を取り入れる窓になりました。
幅1.5間の大型の出窓は南西側の窓と同じくまぶしすぎる上、両サイドの幅の狭い部分しか開閉ができず、東隣りのご実家へ行き来することができなかった。また、下部の収納は高さが低く使いづらいかった。

東側の窓の幅も西側と同様に1.0間幅の掃き出し窓に入替えました。お隣のご実家への行き来がスムーズになり、ご高齢のご両親の様子を見に行く動線が短くなりました。
化粧梁・カウンター・開口枠など重厚な雰囲気が時代を感じさせる。生活用品や飾り物などで散らかりがちな対面カウンター。

対面カウンターのダイニング側には奥様のご趣味であるブリザードフラワーを飾るためにニッチを計画。また、リビングから丸見えだったキッチン内部をタテ格子でゆるやかに仕切り開放感を残しました。
キッチンは対面型ではあったが、閉鎖的で暗かった。また広すぎるキッチンは動線が悪く、多すぎる収納は何をどのように収納するかわかりづらく、使いづらさを感じておられた。

L型キッチンをI型に変更し動線を改善。またシステムキッチンの収納は何をどこに収納するかを考えながらプラン。引出しタイプなので使いやすくなりました。全然使用していなかった食洗器はやめて電動昇降乾燥機をご選択。快適に利用されています。
造り付られた棚や吊戸のため、広いキッチンの割には食器棚を置くスペースがなく不便だった。収納の出し入れがしにくかった。

キッチンの壁面にはご主人様と楽しむお茶や紅茶をまとめて収納できるコーナーを造りました。ティータイムがグレードアップしそうですね!また窓側の吊戸を無くすことでキッチンの奥まで光が届くようになりました。
●キッチンの動線が悪く閉鎖的で暗かった。キッチン横の収納は奥行が深く整理しにくかった。●キッチンの雑然とした様子がリビングから丸見えだった。●洗面室は使い勝手の悪い収納が壁面に造り付けてあり暗かった。●トイレに収納が多すぎて使えていない。●ご主人様の本棚が2階の奥深い場所に造り付けられていた。

●L型キッチンをI型に変更し動線を改善。収納もしやすく明るい。併設したパントリーは便利●3帖の納戸を2帖の洗面室と入れ替え。ゆとりの洗面室で脱衣→洗濯物→入浴の動作が効率的に。●2階のタンス置場と納戸を見直して、ライブラリー空間に。ご主人様のたくさんの本を快適に収納し長居したくなる空間に。
- インテリアカウンター リビエ[終了品]
- LED照明 ダウンライト
- 照明 スポットライト
- 照明器具
- インターホン・テレビドアホン
- キッチン ラクシーナ
- 洗面ドレッシング ウツクシーズ
- トイレ アラウーノ SⅡ





