兵庫県 N様邸

土間続きのファミリークロゼットで収納もたっぷり

織田建設(株)
お店の情報・お問い合わせ 
データ
建物種別 戸建て
改修規模 全面リフォーム
築年数 築40年
施工期間 約180日
地域 兵庫県
家族構成 夫婦+子供1人
テーマ 古民家再生、平屋建て、明るい部屋、オール電化、吹き抜け
お近くの「パナソニックの住まいパートナーズ」登録店
リフォームポイント

築40年ほどの立派な日本家屋でした。母屋には水廻りもなく隙間風で大変寒くだれも住んでない状態でした。先代から引き継いだ若い夫婦が快適で自分達らしい暮らしができるようにリフォームしました。

お客様の声
新築かリフォームか悩みましたが、主人の生まれ育った本家をリフォームしました。古い和風だった家が新築のようになりビックリしています。以前は収納もなく物があふれていましたが、大容量の土間収納やファミリークローゼットのおかげでスッキリしました。動線もスムーズなので、家事や掃除が楽になり、時間の余裕もできました!リビングは小上がりの畳にしたのでくつろぎながら快適に過ごすことができ、お家時間を楽しんでいます。織田建設さんには、沢山の要望を叶えて頂き、感謝しています。
担当者の声
吉田 誠

地元でも立派な日本家屋でした。築40年との事ですが、大事にメンテナンスしていて屋根、柱、梁はしっかりしていました。昔ながらの間取りや、冬の寒さと現代の暮らしには向いてなかったです。ご要望は家事がしやすく、収納たっぷりとのことでしたのでフルリノベーションしてその要望をご叶えることにしました。これからも愛着をもってずっと暮らせる家になったと思います。
ビフォーアフター
ビフォー

既存外観

アフター

瓦はそのままで外部も一新しました

ビフォー

アフター

玄関からファミリークローゼットへ

ビフォー

アフター

家族の収納を玄関横に集めました

ビフォー

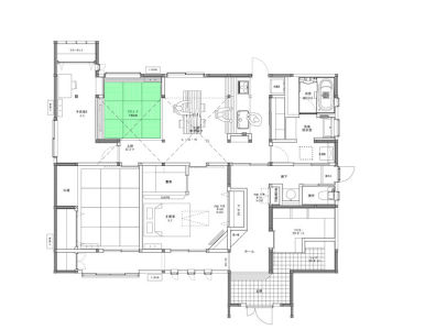
小さな部屋でたくさん区切られていて使いにくく、収納が少ない間取りでした。

アフター

若い夫婦が快適で自分達らしい暮らしができるような間取りにしました。

このリフォームで採用したパナソニック商品
施工店情報
見なおし隊
織田建設(株)

〒656-0121
住所:兵庫県南あわじ市山添95-3
電話:0799-53-6227 FAX:0799-53-6228

■建設業 建設業許可 兵庫県知事許可(般-2)第802044号

お店の情報・お問い合わせ
織田建設(株)のリフォーム事例一覧
近くのお店を探す

Panasonicの住まい・くらし SNSアカウント