兵庫県 H様邸

 キッチン背面奥の空間を、スッキリ見栄えの良い収納に!

サンカラーズリフォーム 西神パルティ
お店の情報・お問い合わせ 
データ
建物種別 マンション
改修規模 改装・設備交換
築年数 築18年
工事面積 約1m2
施工期間 約20日
工事費 約25万円
地域 兵庫県
テーマ 明るい部屋、広々、その他
お近くの「パナソニックの住まいパートナーズ」登録店
リフォームポイント

限られたスペースを、可動棚と引違戸で、どこに何があるか分かりやすいスッキリとした収納へ。

ビフォーアフター
ビフォー

キッチンの背面奥のスペース。袖壁があり、限られた空間に合う家具を調達するのは難しく、まとまりのない空間に。

アフター

壁紙と調和するしっくいホワイト柄の建具で、戸を閉めてしまえば、見た目スッキリ。

ビフォー

家具の統一が難しく、スペースに納まる家具幅優先の空間でした。

アフター

奥行450の可動棚で、収納物を視認しやすく。戸を開けば何がどこにあるか一目瞭然!

ビフォー

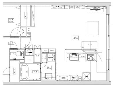
LDKはとても広々としたゆとりある空間でしたが、収納が少なく、家具の統一感も難しい空間になっていました。LDK唯一の収納2つも、奥行が深くて使いづらく、各箇所収納計画が必要な空間となっていました。

アフター

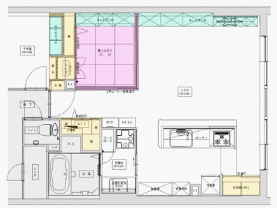
個室を子供室にするため、リビングに畳小上がりの和室空間を作って、ご夫妻の寝室に。壁一面のキュビオスで、LDKの収納力も充実しスッキリとした空間に。取合収納・既存のリビング収納・キッチン背面奥も、使い勝手良く改装しました。

このリフォームで採用したパナソニック商品
施工店情報
見なおし隊
サンカラーズリフォーム 西神パルティ

〒651-2277
住所:兵庫県神戸市西区美賀多台9-2-2 パルティ内
電話:0120-454-031 FAX:078-996-1631

■建設業 建設業許可 兵庫県知事許可(般-2)第108842号

お店の情報・お問い合わせ
サンカラーズリフォーム 西神パルティのリフォーム事例一覧
近くのお店を探す

Panasonicの住まい・くらし SNSアカウント