兵庫県 O様邸

娘達が帰省した時に楽しくすごせる家にしたい。

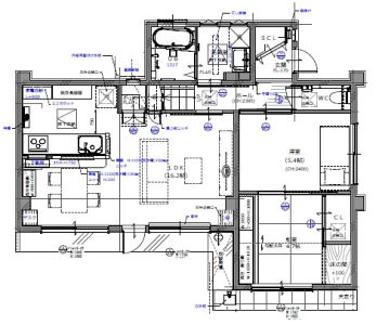
  • 物件全体
  • キッチン・ダイニング・リビング
株式会社ライフライン
お店の情報・お問い合わせ 
データ
建物種別 戸建て
改修規模 全面リフォーム
築年数 築50年
工事面積 約30m2
工事費 約500万円
地域 兵庫県
家族構成 本人
テーマ バリアフリー、明るい部屋、広々
お近くの「パナソニックの住まいパートナーズ」登録店
リフォームポイント

間取り変更をしてLDKを広くし、キッチンの位置を移動。家族とコミュニケーションしながら楽しく調理や団欒が出来る明るく広々としたLDKに。

お客様の声
とても使いやすく大満足です。娘の要望を須藤さんが叶えてくださったおかげです。実は雨漏りが発生してリフォームしようか迷っている間に妻が病気になり亡くなってしまいました。こんなに見違えるようになるのだったらもっと早く元気なうちにリフォームしておけばよかったと後悔しています。
担当者の声
須藤 陽子

娘様がお父様の1人暮らしを心配されていて、IHだったり段差を無くしてバリアフリーにと、そんな思いを組み込み、またご実家で娘様がお父様と過ごすのに楽しくできる様な空間作りと、お母様との思い出も大切にした空間を作りました。
ビフォーアフター
ビフォー

狭く暗いキッチンスペースをどうにかしたい。

アフター

間取り変更で広々LDKに。キッチンからリビングが見渡せるので家族と楽しくコミュニケーションしながら料理ができる空間に。

ビフォー

家族が集える空間に。

アフター

間取り変更で広々と、ダウンライトで明るいLDKに。リビングを見渡せるキッチンと庭を眺めながら寛げるリビングに。

ビフォー

水廻りが小さく使いづらい。LDKが小さい。

アフター

LDKの設備や風呂、トイレの位置も変更して庭をゆっくり眺められるようになりました。

このリフォームで採用したパナソニック商品
施工店情報
見なおし隊
株式会社ライフライン

〒655-0047
住所:兵庫県神戸市垂水区東舞子町18-22
電話:078-787-7345 FAX:078-787-7346

お店の情報・お問い合わせ
株式会社ライフラインのリフォーム事例一覧
近くのお店を探す

Panasonicの住まい・くらし SNSアカウント