群馬県 H様邸
人が集う、南向きのアイランドキッチン。最新の快適機能でお料理好きになりました!
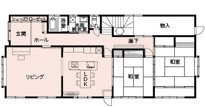
- 物件全体
- キッチン・ダイニング
- リビング
- 玄関・廊下
有限会社鞍城建設
| 建物種別 | 戸建て |
|---|---|
| 改修規模 | 改装・設備交換 |
| 築年数 | 築38年 |
| 施工期間 | 約90日 |
| 地域 | 群馬県 |
| 家族構成 | 1世帯1人 |
| テーマ | 団らんキッチン、明るい部屋、その他 |
-
リビングの床材は「アーキスペックフロアー」のオーク色で統一。お孫さんがおもちゃのクルマで遊んだり、モノを落としても、傷がつきにくいと実感されているそう。このソファで本を読むときが、最高のリラックスタイムです。
南向きに広いリビングとDKがあるH様邸ですが、個々の空間が壁で隔てられ、明るさを感じられないことに不満をお持ちでした。そこでリビングとDKの間のドアを取り払い、DKと和室の間にあった廊下との壁もなくして、DKを広げたところ、以前とは比べものにならないほど広く、明るい空間になりました。さらに古いキッチンを「ラクシーナ」のアイランドタイプにリフォーム。キッチンのまわりをお孫さんたちが駆け回る、開放的な間取りが誕生しました。
「キッチンやリビングをリフォームしたい」とずっと考えていましたが、なかなかタイミングが合わず、ようやく夢をかなえることができました。リフォーム後はとても快適で、「もっと早くやればよかった」と思ったぐらい(笑)。子どもたちも孫とよく訪れ、孫はLDKを走り回って遊んでいます。
有限会社鞍城建設 石坂辰郎 様
H様は私が子どもの頃からの知り合いで、今回のリフォームも何年も前からお話をいただいていました。
パナソニックのショウルームにお連れした際、「落ち着いたデザインが多い」と喜ばれ、「ラクシーナ」を選ばれました。他にも、暗くて寒い廊下をなくしてDKを広げた点や、玄関を格調高い空間に仕上げた点も喜んでいただけました。もともと当社は伝統的な和風建築を得意とする工務店ですが、最近では「大工のDNA」を発揮しながら住宅の最新トレンドも採り入れた今回のような事例も増えています。
H様は私が子どもの頃からの知り合いで、今回のリフォームも何年も前からお話をいただいていました。
パナソニックのショウルームにお連れした際、「落ち着いたデザインが多い」と喜ばれ、「ラクシーナ」を選ばれました。他にも、暗くて寒い廊下をなくしてDKを広げた点や、玄関を格調高い空間に仕上げた点も喜んでいただけました。もともと当社は伝統的な和風建築を得意とする工務店ですが、最近では「大工のDNA」を発揮しながら住宅の最新トレンドも採り入れた今回のような事例も増えています。
リビングは広くて大きな窓があるものの、モノが多くてすっきりしませんでした。

リビングの床材は「アーキスペックフロアー」のオーク色で統一。お孫さんがおもちゃのクルマで遊んだり、モノを落としても、傷がつきにくいと実感されているそう。このソファで本を読むときが、最高のリラックスタイムです。

このリフォームで採用したパナソニック商品





