すみずみまであたたかい
夫婦二人のための住まいにリフォーム。
住マイルホーム株式会社
| 建物種別 | 戸建て |
|---|---|
| 改修規模 | 全面リフォーム |
| 築年数 | 築50年 |
| 総工事面積 | 約147.8m2 |
| 施工期間 | 約120日 |
| 総工事費 | 約2500万円 |
| 地域 | 千葉県 |
| 家族構成 | 1世帯2人 |
| テーマ | 団らんキッチン、明るい部屋、耐震、広々 |
-
田の字型の和室をフルリフォームし、一体感のあるLDK空間を実現。床暖房のじんわりとしたあたたかさが心地よく、ご主人は床の上でゴロゴロするときがいちばんのリラックスタイムに。LDKで過ごす時間が長くなり、自然と会話も増えたそうです。
-
床材は「ベリティス」のオーク柄にして明るい空間に。システム収納「キュビオス」と建具を引き締まったカラーにして、高級感を演出。玄関との間に明かり取りの窓を設けたので、自然光が入り、リビングの奥まで明るくなりました。
-
リビングやダイニングを見渡せるキッチン。リビングとの間にある柱は構造上の理由で取り払えないため、柱を残しつつ格子を設け、ゆるやかにつながる空間設計に。お互いの気配が感じられます。
-
キッチンの落ち着いた扉色は、奥様がショウルームで実物を見て即決されました。IHクッキングヒーターを上手く使えるか不安に感じておられましたが、「火力調整も簡単ですし、なにより消し忘れがないのがいいですね。外出の際の心配事が減りました」と奥様。
-
冷え性の奥様にとって、「あたたかさが違う」酸素美泡湯はなによりの楽しみ。さらに入る前に床をあたためる「スゴぽかフロア」が、寒い季節に大活躍!「ヒートショックが怖いので、最初からお風呂があたたかいと安心感がありますね」とご主人も満足されておられるそう。
-
たっぷり収納できる洗面台「ウツクシーズ」で空間がスッキリ。洗面脱衣室にも床暖房を設置し、入浴前後の寒さから解放されました。以前は湯上りにあわてて靴下を履いておられた奥様も、今はゆったり。ドライヤーで髪を乾かしながら、入浴後のあたたかな時間を過ごされます。
-
自称「お掃除魔」の奥様にとって、「アラウーノ」の汚れのつきにくさは驚きでした。「泡が汚れを落としてくれていることを実感します。便器のかたちも凹凸がなくて拭きやすいですね」。頻繁にお掃除する必要はありませんが、運動がてら拭きあげることも多いとか。
-
お客様をお出迎えする玄関は、真正面の壁クロスを変えて高級感を演出。ニッチ棚を設けたので、季節の置物を飾って楽しめるようになりました。玄関収納と扉を「ベリティス」で統一したため、空間がすっきりと見えます。
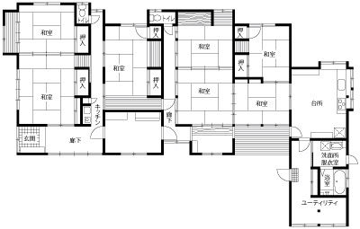
築約50年のお住まいは、土間の台所や田の字和室がある昔ながらの日本家屋。娘さんたちの独立とご主人の定年をきっかけに、大規模リフォームを決意されました。土間の台所は思い切って減築し、耐震性を高めるため、基礎や柱も補強し直しました。さらに、LDKや浴室・洗面脱衣室・トイレに床暖房を採用。寒くて暗かった空間が暖かく快適に生まれ変わりました。娘さんもときどき遊びに来られ、あたたかなリビングでご夫妻とともに過ごされるそうです。

Y様ご一家は東日本大震災でかなりの揺れを経験されました。そこで基礎からコンクリートを打ち直し、柱も相当数増やして補強。壁や天井に断熱材をたっぷり入れたため、夏の涼しさ・冬のあたたかさはもちろん、遮音性もよくなったと大変お喜びです。間取りや設備は、ご夫妻の暮らしやすさを最優先に考えました。千葉と東京・汐留のショウルームで、キッチン・浴室から照明・建具まで、すべての設備を決めていただいたのですが、奥様のご決断の早さが印象に残っています。「設備の進化で電気代も思ったほどかからない」「このリフォームに後悔なし!」と、うれしいお言葉もいただきました。
和室の奥は暗く、近寄り難い雰囲気。大きな押入れもありましたが、使い勝手の悪いものでした。

田の字型の和室をフルリフォームし、一体感のあるLDK空間を実現。床暖房のじんわりとしたあたたかさが心地よく、ご主人は床の上でゴロゴロするときがいちばんのリラックスタイムに。LDKで過ごす時間が長くなり、自然と会話も増えたそうです。

床材は「ベリティス」のオーク柄にして明るい空間に。システム収納「キュビオス」と建具を引き締まったカラーにして、高級感を演出。玄関との間に明かり取りの窓を設けたので、自然光が入り、リビングの奥まで明るくなりました。

リビングやダイニングを見渡せるキッチン。リビングとの間にある柱は構造上の理由で取り払えないため、柱を残しつつ格子を設け、ゆるやかにつながる空間設計に。お互いの気配が感じられます。

キッチンの落ち着いた扉色は、奥様がショウルームで実物を見て即決されました。IHクッキングヒーターを上手く使えるか不安に感じておられましたが、「火力調整も簡単ですし、なにより消し忘れがないのがいいですね。外出の際の心配事が減りました」と奥様。

冷え性の奥様にとって、「あたたかさが違う」酸素美泡湯はなによりの楽しみ。さらに入る前に床をあたためる「スゴぽかフロア」が、寒い季節に大活躍!「ヒートショックが怖いので、最初からお風呂があたたかいと安心感がありますね」とご主人も満足されておられるそう。

- 壁面収納 キュビオス
- 床材 ジョイハードフロアー[終了品]
- リフォムス(推奨後継品「Lクラス」)
- 床暖房 温水式You 温すい
- バスルーム リフォムス
- 洗面ドレッシング ウツクシーズ
- トイレ アラウーノ SⅡ
- 床材 ベリティス
- 玄関収納 コンポリア





