大阪府 O様邸
ナチュラルなインテリアでご家族みんなが居心地良く
株式会社サンリフォーム本社
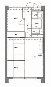
| 建物種別 | マンション |
|---|---|
| 改修規模 | 全面リフォーム |
| 築年数 | 築35年 |
| 総工事面積 | 約66m2 |
| 施工期間 | 約30日 |
| 総工事費 | 約373万円 |
| 地域 | 大阪府 |
| テーマ | 明るい部屋、その他 |
L型の対面キッチンは奥様たっての希望。
お料理中の動作をスムーズにできるよう、食器棚や家電の配置にこだわりました。
また、和室と洋室の間のクローゼットにはどちらからも使える扉を付けることで通気を確保。
ナチュラルなインテリアがご家族みんなの居心地をさらに良くします。




L型の対面キッチンは奥様たっての希望。
お料理中の動作をスムーズにできるよう、食器棚や家電の配置にこだわりました。





