大阪府 H様邸

古民家再生

株式会社池田邦工務店
お店の情報・お問い合わせ 
データ
建物種別 戸建て
改修規模 全面リフォーム
築年数 築120年
施工期間 約90日
地域 大阪府
家族構成 ご夫婦、お子様2人
テーマ 古民家再生
お近くの「パナソニックの住まいパートナーズ」登録店
リフォームポイント

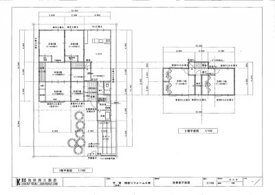
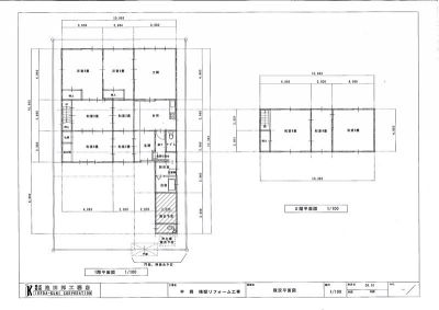
祖父が亡くなり、古家を相続し建て替えるのも費用が掛かるのでリフォームする事になりました。2階部分が中二階程度の天井高しかなかったので出来るだけ天井を上げる為に一部丸太の梁を見せています。また、隙間風が吹き込む寒い家だったので断熱改修をしました。

担当者の声
平山 泰行

隙間だらけの家で寒いのでどうにかして下さいと言う事で、床に10cmのウレタンパネル。壁にもウレタンパネル。窓は二重窓サッシに取替ました。2階部分が昔は物入れに使用していたと言う事で天井が低くかったのですが、その部分を子供室にしたいと言う事で階段の位置を替え天井も出来るだけ上げました。昔ながらの梁をそのまま見せるようにしました。
ビフォーアフター
ビフォー

アフター

ビフォー

アフター

施工店情報
見なおし隊
株式会社池田邦工務店

〒547-0024
住所:大阪府大阪市平野区瓜破4-2-48
電話:06-6760-0555 FAX:06-6707-7778

■建設業 大阪府知事許可(特-7)第059153号\n\n

お店の情報・お問い合わせ
株式会社池田邦工務店のリフォーム事例一覧
近くのお店を探す

Panasonicの住まい・くらし SNSアカウント