大阪府 S様邸

アンティークなマンションリフォーム

(株)河原工房
お店の情報・お問い合わせ 
データ
建物種別 マンション
改修規模 全面リフォーム
築年数 築30年
施工期間 約75日
地域 大阪府
家族構成 ご夫婦
テーマ その他
お近くの「パナソニックの住まいパートナーズ」登録店
リフォームポイント

マンションの中古物件を購入されたお施主様は、ご結婚をひかえ、新たな共同生活をスタートするにあたり「内装・設備を大好きなインテリア空間にしたい!」というご要望でした。自然素材を用い、お二人にあったアンティーク空間をデザインするとともに、結露・カビなどの対策もしっかりと解決。お家のセンターに配備したWICや内装個所の至る所に造作した『ちょっとした棚』もお手持ちの家具・物・量をお聴き取りご提案。これからのお二方専用の温かいリフォームです。

担当者の声
増原一臣

「マンションリフォームでここまで内装が変わるの!?」と工事中、気になっていた方々が今でも「ちょっと見せてください」と尋ねてこられるそうです。素敵なアンティーク空間を実現するため、エイジングやヴィンテージ塗装(自然塗料)を細部にまで施し、本格アンティークな空間をご提案。床材はマンションのため、遮音性が必要なので、廃盤在庫品のL-45フローリングを床スラブに敷き、その上に無垢フローリングを塗装。無垢材ならではの温かみで足元の体感温度も向上!マンションの、漆喰などに関心のある方々にも大好評で、引っ越したばかりのお施主様も、近所の方々と話す機会が増えて、仲良くなれたと喜んでいらっしゃいました!
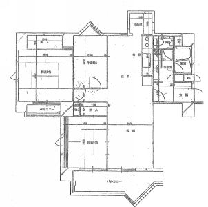
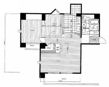
ビフォーアフター
ビフォー

アフター

素敵なアンティーク空間を実現するため、エイジングやヴィンテージ塗装(自然塗料)を細部にまで施し、本格アンティークな空間をご提案。床材はマンションのため、遮音性が必要なので、廃盤在庫品のL-45フローリングを床スラブに敷き、その上に無垢フローリングを塗装。無垢材ならではの温かみで足元の体感温度も向上!

ビフォー

アフター

施工店情報
見なおし隊
(株)河原工房

〒569-1142
住所:大阪府高槻市宮田町2-1-29 サンワビル102号
電話:072-668-7170 FAX:072-668-7173

■建設業 国土交通大臣(般-3)第26187号\n

お店の情報・お問い合わせ
(株)河原工房のリフォーム事例一覧
近くのお店を探す

Panasonicの住まい・くらし SNSアカウント