大阪府 N様邸
気ままな大人の一人暮らしを楽しむためのSOHOリフォーム
ワーク・アンド・デザイン(株)
| 建物種別 | マンション |
|---|---|
| 改修規模 | 全面リフォーム |
| 築年数 | 築40年 |
| 施工期間 | 約30日 |
| 地域 | 大阪府 |
| 家族構成 | 1人 |
| テーマ | その他 |
-
仕事だけでなく、ご自身の趣味も楽しめる空間にしたいと
デザイン提案のできる弊社にリフォームをご依頼頂きました。
多趣味な男性の一人暮らし、職住が一体となったワンルームの
全面リフォームです。
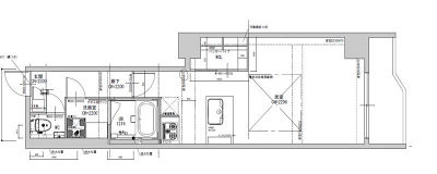
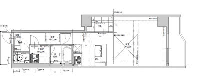
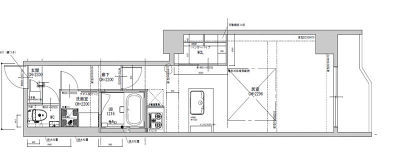
・トイレ、洗面、浴室が一室となっていたため、水廻りを分離して使い勝手良く。
・キッチンを対面キッチンへ変更し、料理をしながら友人とのおしゃべりを楽しめる空間に。
・趣味の楽器や、レコードのコレクションをすっきり収納する為、
ウォークインクローゼットを設置。

伏原 良司
ワンルームマンションでは大胆な間取りの変更が難しいため、自然と水廻りの配置や仕様にウエイトが置かれた物件となりました。特に、壁付のキッチンを対面キッチンにしたことで、部屋の使い方ががらりと変わったと思います。床下、天井裏の古い配管はすべて入れ替え、今後の見えない部分でのトラブルを最小限に抑えられるようにしました。家に対するお客様のデザインイメージと、弊社のこれまでのノウハウがうまく組み合わさり、お客様に大変ご満足頂けるリフォームとなりました。
ワンルームマンションでは大胆な間取りの変更が難しいため、自然と水廻りの配置や仕様にウエイトが置かれた物件となりました。特に、壁付のキッチンを対面キッチンにしたことで、部屋の使い方ががらりと変わったと思います。床下、天井裏の古い配管はすべて入れ替え、今後の見えない部分でのトラブルを最小限に抑えられるようにしました。家に対するお客様のデザインイメージと、弊社のこれまでのノウハウがうまく組み合わさり、お客様に大変ご満足頂けるリフォームとなりました。


仕事だけでなく、ご自身の趣味も楽しめる空間にしたいと
デザイン提案のできる弊社にリフォームをご依頼頂きました。






