愛知県 K様邸

都心の3階建てを全面リフォーム。
新婚カップルの夢をかなえたハイセンスな新居。

北河建設株式会社
お店の情報・お問い合わせ 
データ
建物種別 戸建て
改修規模 全面リフォーム
築年数 築30年
施工期間 約180日
地域 愛知県
家族構成 1世帯2人
テーマ 団らんキッチン、広々、その他
お近くの「パナソニックの住まいパートナーズ」登録店
リフォームポイント

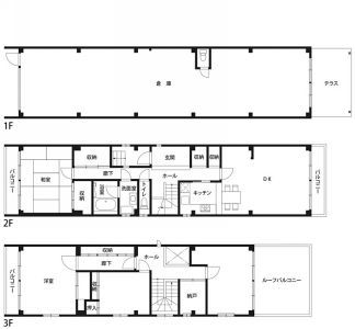
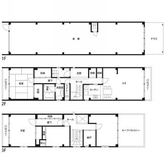
結婚後の新居に、3階建ての中古住宅をご購入。
水廻り設備から床、照明、扉の一つひとつまでこだわり抜いた素敵な住まいに生まれ変わりました。

お客様の声
難しい要望にも応えていただき、理想の新居ができました。ショウルームでパナソニック製品を見て、「品質に間違いない!」と確信。暮らしはじめてからも、とても気に入っています。近くに住む母もわざわざお風呂に入りに来るんですよ(笑)
担当者の声
代表取締役 北河 治 様

建築とは、その人のライフスタイルを表現するもの。K様の奥様とは子どもの頃から家族ぐるみのつきあいがあり、ライフスタイルもデザインのお好みもよく理解していました。よく知っている人だからこそ、ここまで表現できたのだと思います。
当社は新築物件を多く扱っていますが、リフォームは受け継いだものをうまく活かすことに面白さがあります。今後も住み心地のいい家、住まう人が幸せになれる空間づくりを実現していきたいですね。
ビフォーアフター
ビフォー

アフター

洗面ドレッシング「シーライン」のツインラインLED照明は顔に影ができにくく、メイクが楽しくなります。システムバスルーム「ココチーノS」の浴槽は足をゆったり伸ばせて、腕や頭もラク。なにより驚いたのは、保温性の高さ。追い焚きしなくてもよくなって助かっています。

ビフォー

アフター

このリフォームで採用したパナソニック商品
現行のおすすめ商品
施工店情報
見なおし隊
北河建設株式会社

〒453-0819
住所:愛知県名古屋市中村区城主町5-20
電話:052-482-4181 FAX:052-471-0509

お店の情報・お問い合わせ
北河建設株式会社のリフォーム事例一覧
近くのお店を探す

Panasonicの住まい・くらし SNSアカウント