岡山県 N様
自然光があふれ、冬も暖か。
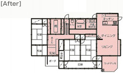
明るく開放的なLDKのある、エコな住まい。
-
タイル貼りで冬の寒さに震えていた洗面脱衣室。収納たっぷりの洗面ドレッシング「ウツクシーズ」にして、タオルや洗濯物までスッキリしまえるように。断熱性もアップして冬でも暖かくなりました。
暮らしながら2年間に3回のリフォームを重ねて、夢を実現。
見違えるほど明るくなって、家族や友人が集うにぎやかなLDK0に。
太陽光発電システムとIHで光熱費も大幅にカットされました。
子供たちが巣立ち、ふと気づけばわが家の住みにくさが気になるようになりました。お陰さまで今では居心地がよく、友人や娘が集う、いつもにぎやかな住まいになりました。
(株)中祥建設 代表取締役 阪口 善男 様
最初に外装塗装をリフォームされた時の職人の仕事ぶりを気にいってくださり、その後3回にわたってリフォームの相談をお受けすることができました。当社の強みは、大工や左官工、瓦職人など、多くの職人を自社で抱えていること。お客様のご希望に、きめ細やかにお応えすることができました。
最初に外装塗装をリフォームされた時の職人の仕事ぶりを気にいってくださり、その後3回にわたってリフォームの相談をお受けすることができました。当社の強みは、大工や左官工、瓦職人など、多くの職人を自社で抱えていること。お客様のご希望に、きめ細やかにお応えすることができました。

このリフォームで採用したパナソニック商品






