家で一番明るくてロケーションの良い場所を最幸の寛ぎ空間にしました。
サンカラーズリフォーム ステップガーデン
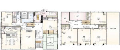
| 建物種別 | 戸建て |
|---|---|
| 改修規模 | 全面リフォーム |
| 築年数 | 築26年 |
| 総工事面積 | 約246m2 |
| 施工期間 | 約105日 |
| 総工事費 | 約2800万円 |
| 地域 | 兵庫県 |
| 家族構成 | お義母様 奥様 息子様 娘様 |
| テーマ | 団らんキッチン、二世帯、バリアフリー、明るい部屋、ペット、広々、その他 |
-
玄関ドアも断熱性能の良いものに新設し、玄関収納も充実させ間接照明も増やした。
-
既存格天井を生かして明るめの珪藻土壁にして、床を張替え玄関収納コンポリアを土間と廊下に設置した。旅館のように落ち着いた品の良い空間になった。
-
既存和室をLDKにしたので入口も洋風建具に入れ替え和洋折衷を上手く融合させるよう床や建具はチェリー柄にした。
-
玄関収納コンポリアに天袋収納も新設し明るめの間接照明も設置。玄関土間も大判のタイルを貼って豪華に仕上げた。
-
入口を入ると明るめの珪藻土壁とチェリー柄の床・建具・玄関収納と間接照明が融合する品格のある雰囲気が奥まで繋がる空間となった。
-
玄関土間のタイルも張替え、より風格のある空間でお出迎えが出来るようになった。
-
新設した間接照明
-
奥のサッシのあるところはゴミの一時置場で、キッチンがすっきりと使えるのに役立っている。対面のI型キッチンに奥行きが650のカップボードを新設。
-
右に見えているのはパントリーで奥行きが深くL型に棚を設置しキッチンをすっきり使うのに便利。
-
南面と西面の窓からの採光により気持ちの良い空間。
-
元の和室二間続きの部分をダイニングとリビングに分けて開閉でき、フレキシブルに楽しめるようにした。建具は大スパンの為特注。
-
奥のスライド扉の向こうは洗濯干しスペース。広縁を取り込んでゆったりとしたダイニングスペースになった。
-
日当たりの良い広縁は洗濯干しのスタンドを置いて高齢のお母さまが干しやすく工夫。
-
居心地の良いダイニングにワンチャンのスペース作った。
-
大壁にしてDKと続く広く明るいリビングになった。照明はインテリアダクトを採用しスポットライトも調光調色ができるものにした。
-
DKと続く広いリビング
-
W900にW300の収納を新設。ウォークインクローゼットへ通じる扉もあり使いやすいゾーニング。
-
廊下側からも入れるようにして脱衣・洗濯・洗面と機能的な空間にした。
L型に作っておりウォークインクローゼットにも繋がるので使いやすい。 -
浴槽もまたぎやすく足を伸ばしてゆったりと入れるお風呂になり、掃除もしやすく寒くないとの事。
-
洋室に変えて壁はクロスで床はフローリングにしたことで使い方も広がった。
-
二方向から光が入りクロス壁で明るくなったのでより快適な部屋になった。
-
ワンちゃんが覗ける開口もついた手摺壁を新設。
-
ワンちゃんが覗ける開口もついた手摺壁を新設。
-
階段は既存のまま壁面や笠木を新設
-
入口ドアもクローゼット扉も新設。
-
押入れと旧キッチン側に拡張して床の間・違い棚と仏間を新設。
-
押入れと旧キッチン側に拡張して床の間・違い棚と仏間を新設。
-
押入れと旧キッチン側に拡張して床の間・違い棚と仏間を新設。
2間続きの本格的和室と広縁を家族の集う広いLDKにして食事を作る・食べる・TVを見る・寛ぐ・洗濯物を干す、ワンちゃんと遊ぶ・お客様を招く等、家族みんなで最高の場所を最幸に使って頂けるようにしました。仏間や床の間・違い棚といった本格的な設えは8帖の和室に新設して風情を残しました。元のキッチンだったところは勝手口から入ってちょっとした畑仕事の長靴や道具を収納出来るようにして、奥様の寝室も新設しました。洗面脱衣から繋がるウォークインクローゼットも便利に使って頂けます。


1階の大きな間仕切り移動がポイントで、元の和室2間続きと広縁をLDKにして浴室・洗面を広くとり、ウォークインクローゼットを新設した。勝手口から通じる部分に外で使う用具等を収納できるように物入を作り大容量のクローゼットのある奥様の寝室も新たに作った。真壁の和風建築だったので床天井も解体し、壁も大壁に作り替えた。玄関とホールは既存格天井の趣を残し左官や床材・玄関収納・間接照明で和の雰囲気を残した。2階は和室を洋室に変え内装建具も一新させ各個室を充実させた。
広いが収納も少なく内装も古くなってきた。玄関引戸も断熱性能が低く寒い。

玄関ドアも断熱性能の良いものに新設し、玄関収納も充実させ間接照明も増やした。

既存格天井を生かして明るめの珪藻土壁にして、床を張替え玄関収納コンポリアを土間と廊下に設置した。旅館のように落ち着いた品の良い空間になった。

既存和室をLDKにしたので入口も洋風建具に入れ替え和洋折衷を上手く融合させるよう床や建具はチェリー柄にした。
元の玄関収納では全部の靴は納めきれなかった。また玄関先が小さなブラケットだけだったので暗かった。

玄関収納コンポリアに天袋収納も新設し明るめの間接照明も設置。玄関土間も大判のタイルを貼って豪華に仕上げた。

入口を入ると明るめの珪藻土壁とチェリー柄の床・建具・玄関収納と間接照明が融合する品格のある雰囲気が奥まで繋がる空間となった。
LDKが一番快適な場所にでき、各人の部屋が充実し、水回りが機能的で美しくなってとても快適です。1階のウォークインクローゼットや勝手口から入る外部専用の物入等も便利です。

2間続きの本格的和室と広縁を家族の集う広いLDKにして食事を作る・食べる・TVを見る・寛ぐ・洗濯物を干す ワンちゃんと遊ぶ・お客様を招く等家族みんなで最高の場所を最幸に使って頂けるようにしました。仏間や床の間・違い棚といった本格的な設えは8帖の和室に新設して風情を残しました。





