兵庫県 F様邸

ホテルライクなスタイリッシュモダンLDK

株式会社シンエイ・シンエイリフォーム
お店の情報・お問い合わせ 
データ
建物種別 マンション
改修規模 全面リフォーム
築年数 築24年
工事面積 約23m2
施工期間 約32日
工事費 約295万円
地域 兵庫県
家族構成 夫婦+子ども1人
テーマ 団らんキッチン、明るい部屋、広々、その他
お近くの「パナソニックの住まいパートナーズ」登録店
リフォームポイント

和室スペースをリビングに組み込むことで、より使いやすく明るい生活空間が完成しました。和室の一部はリビング収納やニッチとして利用することで、部屋がスッキリとします。まさに一石二鳥の結果を達成しました。
デザインは、ご家族でよく利用されるリゾートホテルを意識したご提案。機能的かつスタイリッシュで快適な空間が完成しました。

お客様の声
・狭かった浴室を大きくすることが一番の要望だったので叶えてもらえてよかった。
・間取りや内装の相談にのってもらったことでありきたりにならなかった。
・全体的な統一感が取れていることがよかった。
・キッチン・洗面室・浴室・トイレは家族が毎日使うところ。広くなって気分がよい。
・洗面室とトイレのアール壁の提案が気に入っている。
担当者の声
同じマンション内の別室からの住み替え全面リフォームです。
家族皆が日常使う場所を広くしたいと考えておられたお施主様。キッチン・洗面室・浴室・トイレは家族が毎日使う場所ですので重点的に取り組みました。デメリットが生じる可能性もよく理解され、どこを犠牲にするかを慎重に考えられました。また、全体のデザインについてはリゾートホテルのような統一感を重視され、提案ごとにご家族で吟味していただきました。おかげさまで素敵な空間が完成しました。
ビフォーアフター
ビフォー

LDに隣接する和室。仕切られた空間のため使用頻度も少なかった。

アフター

間仕切りを取り払いLDに取り込むことで広々LDが実現。
アクセント壁紙の優しいブラックに、しっくいホワイト柄の建具が映えてスタイリッシュな空間に。

ビフォー

アフター

壁を取り払ったことで、3つの窓からたくさんの光を取り込むことができ、明るい空間になりました。

ビフォー

アフター

リビングの一角に造るニッチは家の中心的役割を果たします。家族の大切な品物を収める収納スペースや、素敵な飾り棚として利用することもできます。

ビフォー

アフター

リビング収納・・・それがあればすっきりと片付き、居心地のいいリビング空間が実現します。

ビフォー

アフター

和室の一部が収納&ニッチに。

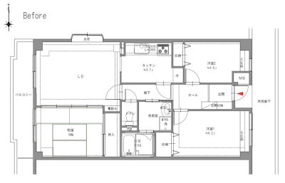
ビフォー

・部屋が分割されていて、LDKが狭い。
・浴室が狭い。

アフター

・和室の一部を利用してせまかった浴室を1116サイズ→1418サイズに。
・残りの和室をLDKに取り込むことにより、
3つの窓からの採光が入り明るい空間に。
・リビング収納やニッチ収納を作ることで、
家族のモノで雑然としがちなLDKもすっきり。

このリフォームで採用したパナソニック商品
施工店情報
見なおし隊
株式会社シンエイ・シンエイリフォーム

〒663-8122
住所:兵庫県西宮市小曽根町4-5-16
電話:0120-47-1662 FAX:0798-48-0354

■建設業 建設業許可 兵庫県知事登録(般-4)第220250号

お店の情報・お問い合わせ
株式会社シンエイ・シンエイリフォームのリフォーム事例一覧
近くのお店を探す

Panasonicの住まい・くらし SNSアカウント