兵庫県 F様邸

リゾートホテルのように広く快適な水廻り。

株式会社シンエイ・シンエイリフォーム
お店の情報・お問い合わせ 
データ
建物種別 マンション
改修規模 全面リフォーム
築年数 築24年
工事面積 約8m2
施工期間 約32日
工事費 約135万円
地域 兵庫県
家族構成 夫婦+子ども1人
テーマ 団らんキッチン、明るい部屋、広々、その他
お近くの「パナソニックの住まいパートナーズ」登録店
リフォームポイント

浴室が広がり、それに伴って洗面室のスペースも広くすることができました。そして洗面室横のトイレ間仕切りをアール壁にすることで、さらにゆったりと広い洗面室空間を確保することができ、お客様のご要望を叶えることが出来ました。

お客様の声
・狭かった浴室を大きくすることが一番の要望だったので叶えてもらえてよかった。
・間取りや内装の相談にのってもらったことでありきたりにならなかった。
・全体的な統一感が取れていることがよかった。
・キッチン・洗面室・浴室・トイレは家族が毎日使うところ。広くなって気分がよい。
・洗面室とトイレのアール壁の提案が気に入っている。
担当者の声
同じマンション内の別室からの住み替え全面リフォームです。
家族皆が日常使う場所を広くしたいと考えておられたお施主様。キッチン・洗面室・浴室・トイレは家族が毎日使う場所ですので重点的に取り組みました。デメリットが生じる可能性もよく理解され、どこを犠牲にするかを慎重に考えられました。また、全体のデザインについてはリゾートホテルのような統一感を重視され、提案ごとにご家族で吟味していただきました。おかげさまで素敵な空間が完成しました。
ビフォーアフター
ビフォー

朝に晩に家族で混みあう洗面室。洗面化粧台と洗濯機の2つの機能でピークタイムは狭々。

アフター

浴室の移動により広々洗面室が実現!家族が混みあう時間もストレスなく利用できます。

ビフォー

アフター

広くなった洗面室にはカウンタータイプの洗面化粧台を設置。お手持ちの椅子に座って、快適にメイクやスキンケアを楽しむことができます。まるでリゾートにいるかのような贅沢な空間です。

ビフォー

アフター

トイレとの間仕切り壁にアール壁を採用しました。またパイプスペース(PS)の壁の存在感を差し色使いで緩和しました。リゾートホテルのような水廻り空間が実現しました!

ビフォー

アフター

トイレの位置は変わらず、洗面室との間仕切り壁をアールにすることで、ワンランク上の空間になりました!

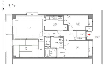
ビフォー

・部屋が分割されていて、LDKが狭い。
・浴室が狭い。

アフター

・和室の一部を利用してせまかった浴室を1116サイズ→1418サイズに。
・残りの和室をLDKに取り込むことにより、
3つの窓からの採光が入り明るい空間に。
・リビング収納やニッチ収納を作ることで、
家族のモノで雑然としがちなLDKもすっきり。

施工店情報
見なおし隊
株式会社シンエイ・シンエイリフォーム

〒663-8122
住所:兵庫県西宮市小曽根町4-5-16
電話:0120-47-1662 FAX:0798-48-0354

■建設業 建設業許可 兵庫県知事登録(般-4)第220250号

お店の情報・お問い合わせ
株式会社シンエイ・シンエイリフォームのリフォーム事例一覧
近くのお店を探す

Panasonicの住まい・くらし SNSアカウント