兵庫県 F様邸

家族が心地よく生活できる空間づくり
LDKや水廻りを広くしてリゾートホテルのようなワンランク上の日常を手に入れる

株式会社シンエイ・シンエイリフォーム
お店の情報・お問い合わせ 
データ
建物種別 マンション
改修規模 全面リフォーム
築年数 築24年
総工事面積 約66m2
施工期間 約32日
総工事費 約896万円
地域 兵庫県
家族構成 夫婦+子ども1人
テーマ 団らんキッチン、明るい部屋、広々、その他
お近くの「パナソニックの住まいパートナーズ」登録店
リフォームポイント

・家族皆が日常使う場所を広くしたいと考えておられたお施主様。個室を充実させるより、毎日使うキッチン・洗面室・浴室・トイレを快適な空間にしたい!そこで、使用頻度が少ない和室を部分利用。1116サイズの浴室は1418サイズの広々浴室を実現しました。それにより洗面室は家族で混みあうことのない広さを確保でき、隣接するトイレとの間仕切りをアール壁にすることで、より広さを感じられる快適な空間になりました。
・和室の残りの空間はリビングに取り込むことで、一部をリビング収納として利用しすっきりと生活できる空間になりました。

お客様の声
・狭かった浴室を大きくすることが一番の要望だったので叶えてもらえてよかった。
・間取りや内装の相談にのってもらったことでありきたりにならなかった。
・全体的な統一感が取れていることがよかった。
・キッチン・洗面室・浴室・トイレは家族が毎日使うところ。広くなって気分がよい。
・洗面室とトイレのアール壁の提案が気に入っている。
担当者の声
同じマンション内の別室からの住み替え全面リフォームです。
家族皆が日常使う場所を広くしたいと考えておられたお施主様。キッチン・洗面室・浴室・トイレは家族が毎日使う場所ですので重点的に取り組みました。デメリットが生じる可能性もよく理解され、どこを犠牲にするかを慎重に考えられました。また、全体のデザインについてはリゾートホテルのような統一感を重視され、提案ごとにご家族で吟味していただきました。おかげさまで素敵な空間が完成しました。
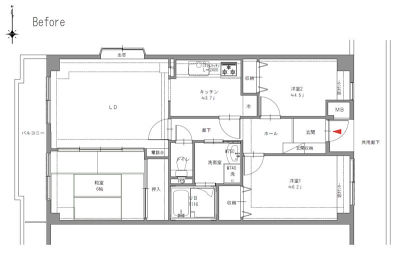
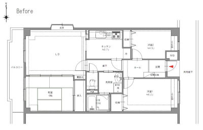
ビフォーアフター
ビフォー

LDに隣接する和室。仕切られた空間のため使用頻度も少なかった。

アフター

間仕切りを取り払いLDに取り込むことで広々LDが実現。
アクセント壁紙の優しいブラックに、しっくいホワイト柄の建具が映えてスタイリッシュな空間に。

ビフォー

アフター

壁を取り払ったことで、3つの窓からたくさんの光を取り込むことができ、明るい空間になりました。

ビフォー

アフター

リビングの一角に造るニッチは家の中心的役割を果たします。家族の大切な品物を収める収納スペースや、素敵な飾り棚として利用することもできます。

ビフォー

アフター

リビング収納・・・それがあればすっきりと片付き、居心地のいいリビング空間が実現します。

ビフォー

アフター

和室の一部が収納&ニッチに。

ビフォー

・部屋が分割されていて、LDKが狭い。
・浴室が狭い。

アフター

・和室の一部を利用してせまかった浴室を1116サイズ→1418サイズに。
・残りの和室をLDKに取り込むことにより、
3つの窓からの採光が入り明るい空間に。
・リビング収納やニッチ収納を作ることで、
家族のモノで雑然としがちなLDKもすっきり。

施工店情報
見なおし隊
株式会社シンエイ・シンエイリフォーム

〒663-8122
住所:兵庫県西宮市小曽根町4-5-16
電話:0120-47-1662 FAX:0798-48-0354

■建設業 建設業許可 兵庫県知事登録(般-4)第220250号

お店の情報・お問い合わせ
株式会社シンエイ・シンエイリフォームのリフォーム事例一覧
近くのお店を探す

Panasonicの住まい・くらし SNSアカウント