兵庫県 Y様邸

明るく上品な寝室

織田建設(株)
お店の情報・お問い合わせ 
データ
建物種別 戸建て
改修規模 全面リフォーム
築年数 築40年
工事面積 約20m2
施工期間 約230日
地域 兵庫県
テーマ 広々、明るい部屋、団らんキッチン
お近くの「パナソニックの住まいパートナーズ」登録店
お客様の声
リフォーム前とは見違えるようになった。どの部屋も明るくて気持ちがいい。収納もところどころにたくさんあってうれしい。キッチン上のスピーカ-付ダウンライトがお気に入りです。
担当者の声
吉田 誠

大きなお家なので部屋を広くする事はかんたんですが、単調にならないように天井・照明・壁紙で変化をつけてみました。
ショウルームでお気に入りのパナソニックのLクラスのオープンキッチンに負けないような上品でラグジュアリーな空間を心がけました。お客様にも大変よろこんでいただけてうれしく思います。
ビフォーアフター
ビフォー

薄暗くて古いインテリア

アフター

明るく上品な寝室

ビフォー

アフター

大容量のウォークインクローゼット

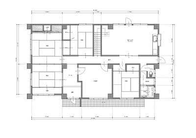
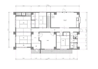
ビフォー

小さく区切られていて狭く感じる。玄関が裏にあり不便。全体的に薄暗い。

アフター

水廻りをかためて、LDKを大きくとる間取りに変更。玄関位置も変更。キッチンからの家事同線が便利

このリフォームで採用したパナソニック商品
施工店情報
見なおし隊
織田建設(株)

〒656-0121
住所:兵庫県南あわじ市山添95-3
電話:0799-53-6227 FAX:0799-53-6228

■建設業 建設業許可 兵庫県知事許可(般-2)第802044号

お店の情報・お問い合わせ
織田建設(株)のリフォーム事例一覧
近くのお店を探す

Panasonicの住まい・くらし SNSアカウント