家族や大勢のゲストが集まれる大空間のLDKがあるお家
織田建設(株)
| 建物種別 | 戸建て |
|---|---|
| 改修規模 | 全面リフォーム |
| 築年数 | 築40年 |
| 総工事面積 | 約350m2 |
| 施工期間 | 約230日 |
| 総工事費 | 約2000万円 |
| 地域 | 兵庫県 |
| テーマ | 広々、明るい部屋、団らんキッチン |
-
対面オープンキッチンへ。間接照明で上品に仕上げました。
-
家電収納の前の扉は開閉でき隠す事もできます。
-
ダイニングと一体で使えるキッチン。奥に見えているアーチ開口の奥は食品庫となっています。
-
リビングへ続くダイニングTVは壁かけ予定。天井には間接照明を設置しました。
-
明るくラグジュアリーなリビング
-
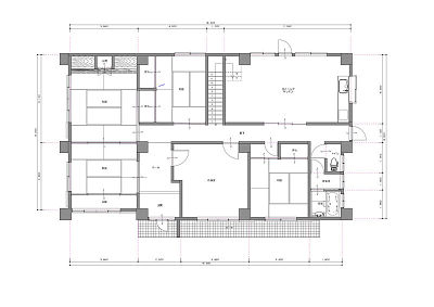
ダイニング、2階階段へとづづく間取り
-
ひろびろ使える洗面台
-
大きな浴槽
-
自動洗浄アラウーノ
-
トイレをでての手洗い
-
明るく上品な寝室
-
大容量のウォークインクローゼット
築40年のコンクリート造の大きなお家のフルリノベーションです。もともとは部屋数が多くどの部屋も小さく、薄暗い部屋となっていました。そこで今回の工事で水廻りを一つのゾーンにかためて、残りのスペースを大きなLDKとする間取りに計画しました。キッチン近くに食品庫、洗面台、お風呂、物干しスペースとアクセスしやすくして、キッチンに立てば37帖のリビング・ダイニングがすみずみまで見渡せるようオープンキッチンにしました。インテリアはホワイトをベースにアクセントに「グレージュ」を使い、明るく上品でぬくもりある空間にスタイリッシュな印象をプラスしました。


大きなお家なので部屋を広くする事はかんたんですが、単調にならないように天井・照明・壁紙で変化をつけてみました。
ショウルームでお気に入りのパナソニックのLクラスのオープンキッチンに負けないような上品でラグジュアリーな空間を心がけました。お客様にも大変よろこんでいただけてうれしく思います。
既存壁付キッチン

対面オープンキッチンへ。間接照明で上品に仕上げました。

家電収納の前の扉は開閉でき隠す事もできます。

ダイニングと一体で使えるキッチン。奥に見えているアーチ開口の奥は食品庫となっています。
既存ダイニング

リビングへ続くダイニングTVは壁かけ予定。天井には間接照明を設置しました。

小さく区切られていて狭く感じる。玄関が裏にあり不便。全体的に薄暗い。

水廻りをかためて、LDKを大きくとる間取りに変更。玄関位置も変更。キッチンからの家事同線が便利





