兵庫県 衣掛町のマンション改修工事
パールグレーの建具をデザインの中心に
株式会社アラカーサ
| 建物種別 | マンション |
|---|---|
| 改修規模 | 全面リフォーム |
| 築年数 | 築38年 |
| 工事面積 | 約19m2 |
| 施工期間 | 約60日 |
| 地域 | 兵庫県 |
| テーマ | 明るい部屋 |
-
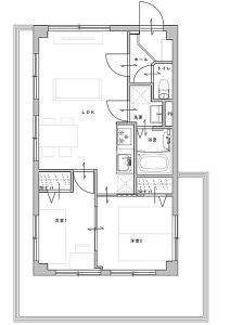
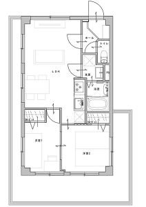
狭小空間のお玄関にフロートトールタイプの玄関収納を設置、框も斜めに切ることで靴を脱ぐスペースを設けトイレスペースまで確保。必要なものがギュッと詰まったスペースです。
-
リビングダイニングの間仕切りを撤去したことですっきりとした空間に。
-
開放感の有る空間へ
ベリティス新色「パールグレー」に合わせた全体の仕様デザインとしました。フロートトールタイプの玄関収納を設置、框も斜めに切ることで土間スペースを確保し靴の脱ぎ履きをしやすいように配慮。リビング建具はガラスから光を取り込み開放感を高めました。玄関内にトイレも設け玄関の正面に配置されていた脱衣室はダイニング側からの出入りに変更することで、家事動線も改善しました。

今回のお客様は不動産業者様所有のマンションで、転売を目的としたリノベーションです。2LDKで素敵な空間にしてください。後はお任せします
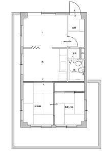
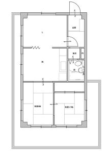
施工前はかなり痛んでいた上、細かく余裕の無い設備配置計画だったので、現場の納まり難易度は高かったです
玄関正面に脱衣室が露出していて、全体面積の割には玄関ホールが広かった

狭小空間のお玄関にフロートトールタイプの玄関収納を設置、框も斜めに切ることで靴を脱ぐスペースを設けトイレスペースまで確保。必要なものがギュッと詰まったスペースです。
施工前のリビングルーム

リビングダイニングの間仕切りを撤去したことですっきりとした空間に。
以前はこの写真左側の壁でリビングとダイニングが区切られていました

開放感の有る空間へ
水廻りは3点ユニットタイプで、脱衣室は丸見えの上、家事動線がとにかく悪かった。洗濯機は外部設置でした。

水廻りを洗面、トイレ、浴室、それぞれ独立させ、洗濯機置場も設置。狭いスペースを有効に活用しました。
このリフォームで採用したパナソニック商品
- 造作部材 ベリティス
- 内装ドア クラフトレーベル





