小さなマンション、ゆったり暮らせるリノベーション
プランニングをじっくりご覧いただきたい物件例です。小さな空間だけにたくさんの工夫とアイデアがギュッと詰まった快適な居住スペースになっています
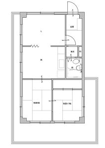
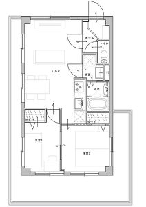
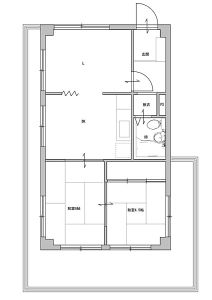
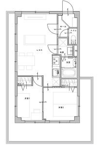
- 物件全体
- リビング・玄関・廊下
- 個室
株式会社アラカーサ
| 建物種別 | マンション |
|---|---|
| 改修規模 | 全面リフォーム |
| 築年数 | 築38年 |
| 総工事面積 | 約44m2 |
| 施工期間 | 約60日 |
| 地域 | 兵庫県 |
| テーマ | 明るい部屋 |
-
狭小空間のお玄関にフロートトールタイプの玄関収納を設置、框も斜めに切ることで靴を脱ぐスペースを設けトイレスペースまで確保。必要なものがギュッと詰まったスペースです。
-
リビングダイニングの間仕切りを撤去したことですっきりとした空間に。
-
開放感の有る空間へ
-
施工後 洋間へ変更。クローゼットを設け、隣接する洋間とも引き違い戸で仕切りを。
-
施工後 引違い戸開けて一体として使用も可能に
最近は自分にとって不要なものは手放し、本当に必要なものだけを手元に残すライフスタイルのミニマリストさんが増えています。そんな方を対象としたマンション計画を行いました。でも、狭いところで住まいたいということでは無いと思います。あくまで必要なものに囲まれてコンパクトに暮らしたいということだと思いますので、重要なポイントは広く見せる工夫や使いやすい収納、動線だと考えています。

玄関正面に脱衣室が露出していて、全体面積の割には玄関ホールが広かった

狭小空間のお玄関にフロートトールタイプの玄関収納を設置、框も斜めに切ることで靴を脱ぐスペースを設けトイレスペースまで確保。必要なものがギュッと詰まったスペースです。
施工前のリビングルーム

リビングダイニングの間仕切りを撤去したことですっきりとした空間に。
以前はこの写真左側の壁でリビングとダイニングが区切られていました

開放感の有る空間へ
施工前 和室①6畳 収納も無くダイニングと引き違い戸で区切られていました

施工後 洋間へ変更。クローゼットを設け、隣接する洋間とも引き違い戸で仕切りを。
施工前 和室②4.5畳

施工後 引違い戸開けて一体として使用も可能に
水廻りは3点ユニットタイプで、脱衣室は丸見えの上、家事動線がとにかく悪かった。洗濯機は外部設置でした。

水廻りを洗面、トイレ、浴室、それぞれ独立させ、洗濯機置場も設置。狭いスペースを有効に活用しました。
- 造作部材 ベリティス
- 内装ドア クラフトレーベル
- ベリティス





