兵庫県 衣掛町のマンション改修工事

小さなマンション、ゆったり暮らせるリノベーション
プランニングをじっくりご覧いただきたい物件例です。小さな空間だけにたくさんの工夫とアイデアがギュッと詰まった快適な居住スペースになっています

株式会社アラカーサ
お店の情報・お問い合わせ 
データ
建物種別 マンション
改修規模 全面リフォーム
築年数 築38年
総工事面積 約44m2
施工期間 約60日
地域 兵庫県
テーマ 明るい部屋
お近くの「パナソニックの住まいパートナーズ」登録店
リフォームポイント

最近は自分にとって不要なものは手放し、本当に必要なものだけを手元に残すライフスタイルのミニマリストさんが増えています。そんな方を対象としたマンション計画を行いました。でも、狭いところで住まいたいということでは無いと思います。あくまで必要なものに囲まれてコンパクトに暮らしたいということだと思いますので、重要なポイントは広く見せる工夫や使いやすい収納、動線だと考えています。

お客様の声
今回のお客様は不動産業者様所有のマンションで、転売を目的としたリノベーションです。2LDKで素敵な空間にしてください。後はお任せします
担当者の声
施工前はかなり痛んでいた上、細かく余裕の無い設備配置計画だったので、現場の納まり難易度は高かったです
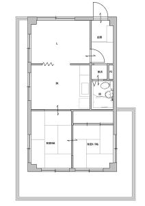
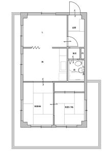
ビフォーアフター
ビフォー

玄関正面に脱衣室が露出していて、全体面積の割には玄関ホールが広かった

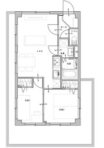
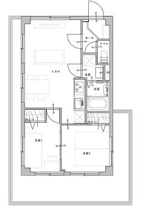
アフター

狭小空間のお玄関にフロートトールタイプの玄関収納を設置、框も斜めに切ることで靴を脱ぐスペースを設けトイレスペースまで確保。必要なものがギュッと詰まったスペースです。

ビフォー

施工前のリビングルーム

アフター

リビングダイニングの間仕切りを撤去したことですっきりとした空間に。

ビフォー

以前はこの写真左側の壁でリビングとダイニングが区切られていました

アフター

開放感の有る空間へ

ビフォー

施工前 和室①6畳 収納も無くダイニングと引き違い戸で区切られていました

アフター

施工後 洋間へ変更。クローゼットを設け、隣接する洋間とも引き違い戸で仕切りを。

ビフォー

施工前 和室②4.5畳

アフター

施工後 引違い戸開けて一体として使用も可能に

ビフォー

水廻りは3点ユニットタイプで、脱衣室は丸見えの上、家事動線がとにかく悪かった。洗濯機は外部設置でした。

アフター

水廻りを洗面、トイレ、浴室、それぞれ独立させ、洗濯機置場も設置。狭いスペースを有効に活用しました。

このリフォームで採用したパナソニック商品
施工店情報
見なおし隊
株式会社アラカーサ

〒651-1301
住所:兵庫県神戸市北区藤原台北町3-6-14
電話:078-203-2367 FAX:078-203-7081

お店の情報・お問い合わせ
株式会社アラカーサのリフォーム事例一覧
近くのお店を探す

Panasonicの住まい・くらし SNSアカウント