兵庫県 T様邸

悠・楽・穏・快 ~ワンルーム仕様のおもてなし空間~

サンカラーズリフォーム 西神パルティ
お店の情報・お問い合わせ 
データ
建物種別 マンション
改修規模 改装・設備交換
築年数 築30年
総工事面積 約60m2
施工期間 約25日
総工事費 約705万円
地域 兵庫県
家族構成 1人
テーマ 団らんキッチン、ホームシアター、明るい部屋、広々
お近くの「パナソニックの住まいパートナーズ」登録店
リフォームポイント

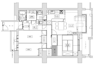
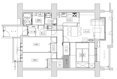
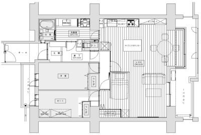
お子様が独立されたのを機に、奥様が楽しく過ごしていただける空間をご提案させていただきました。マンションの配管上、対面キッチンにはできませんでしたが、おもてなし好きの奥様のためにアイランドカウンターを設け、ご友人を招いて楽しく集っていただけるプランをご提案しました。和室を取り込み、広々としたLDKへ。LDKにベッドを配置し、普段はゆったり寛いでいただけるワンルーム仕様に。来客時には、ベッド際に付けたロールスクリーンを下ろして、ベッド側の空間を隠せるようにしました。個室の1室をWICにして、LDKの物をスッキリさせ、ぐるっとどこからでもアクセスできる動線を心がけました。洗面室もユーティリティとの間仕切りを取り、広々としたホテルライクな仕様に。

お客様の声
人を呼んでもてなすのが好きで、大きい壁掛けTVも購入していたので、広々としたLDK空間とホームシアターのような雰囲気ができあがり、とても満足しています!キッチンとカップボードが統一され物がスッキリ収納できるようになったので、片付けしやすくなりました。LDKにベッドスペースのご提案をいただき、普段は広いワンルームの中で日常作業ができ、ゆったりとした時間が過ごせてとても快適です。ベッド側からWICや廊下へ出入りできるようになり、動きがスムーズになりました。主人のお仏壇スペースを考えてくださったのもとても嬉しかったです。将来的にはお友達を招いてカフェバーのようなことができたらと夢を膨らませています。ホテルみたいな洗面室も、とても気に入っています!
担当者の声
小野田 純子

ゆったりと寛げ、また沢山のご友人を招いて楽しんでいただける、広々としたLDKと洗面室が出来上がりました!就寝時だけ個室に籠るより、LDKにベッドスペースを設けたワンルームスタイルの方が、普段居心地の良い時間を過ごしていただけるのではないかと思い、この間取りプランをご提案しました。おもてなし好きな奥様なので、来客時にはベッド側の空間を隠せるよう、間仕切りとしてロールスクリーンもご提案。個室の1室をWICにしてLDKと繋げることで、寛ぐスペースと収納スペースを分け、ぐるっとどこからでもアクセスしやすい動線を心がけました。照明や造作棚・アングルやミラーなど、随所に奥様のセンスが活かされた、とても素敵なLDK・洗面室になりました!
ビフォーアフター
ビフォー

キッチン室は、壁で囲われ孤立し、閉鎖的な空間となっていました。

アフター

間仕切り壁を撤去して、開放的な空間に。キッチン・カップボード・アイランドカウンターを同じ色柄にしてしっかり収納量を確保することで、スッキリ統一感のあるおしゃれなLDKになりました。

ビフォー

リビングのスペースにゆとりがなく、家具やピアノなどが、所狭しと置かれている状態でした。

アフター

和室を取り込みリビングとなった場所からもゆったり感じられるLDKに。来客時にはベッド横のロールスクリーンを下ろして、ベッド側の空間を隠せるようにしました。

ビフォー

お子様が独立された後では、間仕切り壁の多い間取りとなっており、使用されないお部屋が出てきてしまっていました。

アフター

キッチン室や和室の間仕切り壁をとることで、広々としたゆとりあるLDKに。ダイニングテーブルからスッキリ見えるよう、冷蔵庫横やベッド廻りの必要な壁は残しました。

ビフォー

和室はタンスや物置き場の納戸と化しており、8畳のスペースがうまく活かされていない状態でした。

アフター

納戸と化していた和室を取り込み、広々としたLDKへ。ダイニングからでも見応え充分な大画面壁掛けTVが映える空間に。ベッド側には普段使いのクローゼットと、お仏壇スペースを確保。

ビフォー

キッチン室は壁で囲われ独立しており、ダイニング・リビングから見えない分、物で溢れていました。設備も古くなっており、開き扉で物が取り出しにくいキッチンでした。

アフター

壁一面にスッキリ納まったキッチンとカップボード。キッチン前にはインテリアカウンターを付けて、おしゃれな調味料置きに。ご友人を招いて、将来的にはアイランドカウンターでカフェバーのようなことができたら、と奥様。

ビフォー

3人のお子様が独立されたのでお部屋の有効活用ができておらず、間仕切りの多い間取りとなっていました。8畳もある和室は納戸と化しほとんど使用されておらず、キッチンは壁に囲われ暗く、お料理中は孤立している状態でした。キッチンや洗面台も古くなっており、物で溢れていました。(浴室・トイレ・個室は、以前施工済み)

アフター

LDK・和室・洗面室・ユーティリティの余分な壁を取り払い、ゆったり広々寛いでいただける空間をご提案しました。和室をLDKに取り込み、リビングの一画にベッドスペースを設け、普段はワンルーム仕様に。ベッド側から個室のWICや廊下に動線を繋げ、ぐるっとどこからでもアクセスできる動線プランを心がけました。

施工店情報
見なおし隊
サンカラーズリフォーム 西神パルティ

〒651-2277
住所:兵庫県神戸市西区美賀多台9-2-2 パルティ内
電話:0120-454-031 FAX:078-996-1631

■建設業 建設業許可 兵庫県知事許可(般-2)第108842号

お店の情報・お問い合わせ
サンカラーズリフォーム 西神パルティのリフォーム事例一覧
近くのお店を探す

Panasonicの住まい・くらし SNSアカウント