兵庫県 F様邸

子どもの笑顔が家族みんなの笑顔になれる子育て世代のリノベーション

株式会社ライフライン
お店の情報・お問い合わせ 
データ
建物種別 戸建て
改修規模 全面リフォーム
築年数 築25年
施工期間 約60日
地域 兵庫県
家族構成 夫婦 子供3人
テーマ 団らんキッチン、明るい部屋、広々
お近くの「パナソニックの住まいパートナーズ」登録店
リフォームポイント

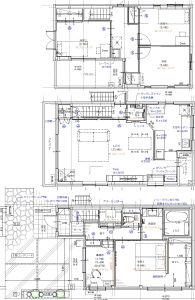
2階部分にLDKとトイレ、洋室1部屋があり、少し窮屈なキッチンでしたが、洋室とLDKの壁を取り払うことで明るく広々したリビングとキッチンを実現。3人のお子様と一緒に調理もしやすいⅡ型のキッチンを採用し、家族が集えるLDKをプラン。3階の浴室を1階へ移動させることで、ご希望の子供部屋を3階に3部屋確保、廊下に洗面台を設置することで子供達の朝の身支度での混雑も解消。

お客様の声
3階建ての戸建、1階を事務所として使用し、結婚時にキッチンを入れ替えただけで住んでいましたが、3人の子供に恵まれ家族が増えるとLDKも少々手狭になってきました。1階の事務所を住居に、また、子供の成長と共に、1人1人に個室を検討。日当たりが悪く暗いのも悩みでしたので、思い切って全面リフォームをすることに。広くて明るいLDKが実現、個々の子供部屋も作って頂き大満足です。
担当者の声
須藤

もともと3階にあった浴室を1階に移動することで3階に子供部屋3室を確保し、2階の洋室とLDKの壁を取り払いトイレを移動させることで家族5人が集える広く明るいLDKをプランしました。
ビフォーアフター
ビフォー

アフター

子供部屋がある3階廊下に洗面を設置。

ビフォー

アフター

このリフォームで採用したパナソニック商品
施工店情報
見なおし隊
株式会社ライフライン

〒655-0047
住所:兵庫県神戸市垂水区東舞子町18-22
電話:078-787-7345 FAX:078-787-7346

お店の情報・お問い合わせ
株式会社ライフラインのリフォーム事例一覧
近くのお店を探す

Panasonicの住まい・くらし SNSアカウント