兵庫県 F様邸

子どもの笑顔が家族みんなの笑顔になれる子育て世代のリノベーション

株式会社ライフライン
お店の情報・お問い合わせ 
データ
建物種別 戸建て
改修規模 全面リフォーム
築年数 築25年
施工期間 約60日
地域 兵庫県
家族構成 夫婦 子供3人
テーマ 団らんキッチン、明るい部屋、広々
お近くの「パナソニックの住まいパートナーズ」登録店
お客様の声
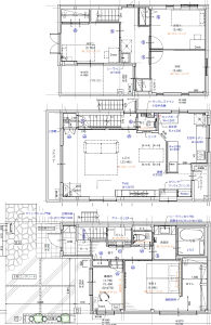
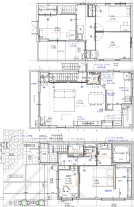
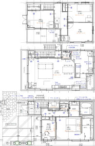
3階建ての戸建、1階を事務所として使用し、結婚時にキッチンを入れ替えただけで住んでいましたが、3人の子供に恵まれ家族が増えるとLDKも少々手狭になってきました。1階の事務所を住居に、また、子供の成長と共に、1人1人に個室を検討。日当たりが悪く暗いのも悩みでしたので、思い切って全面リフォームをすることに。広くて明るいLDKが実現、個々の子供部屋も作って頂き大満足です。
担当者の声
須藤

もともと3階にあった浴室を1階に移動することで3階に子供部屋3室を確保し、2階の洋室とLDKの壁を取り払いトイレを移動させることで家族5人が集える広く明るいLDKをプランしました。
ビフォーアフター
ビフォー

アフター

ビフォー

アフター

ビフォー

アフター

ビフォー

アフター

ビフォー

アフター

ビフォー

アフター

施工店情報
見なおし隊
株式会社ライフライン

〒655-0047
住所:兵庫県神戸市垂水区東舞子町18-22
電話:078-787-7345 FAX:078-787-7346

お店の情報・お問い合わせ
株式会社ライフラインのリフォーム事例一覧
近くのお店を探す

Panasonicの住まい・くらし SNSアカウント