兵庫県 K様邸
アウトドアリビングは、室内リビングを更に豊かにする。
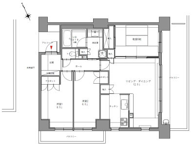
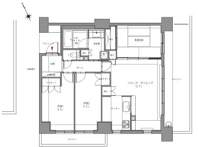
- 物件全体
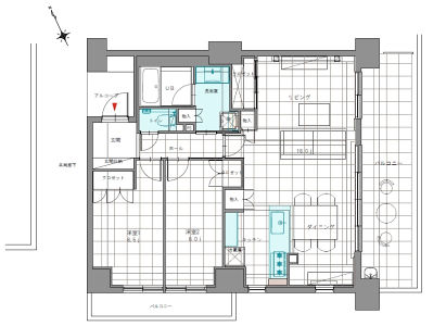
- キッチン・ダイニング
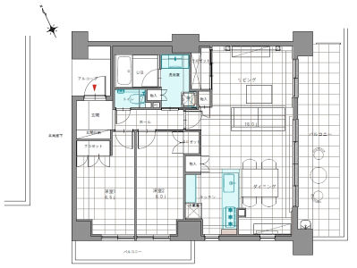
- リビング
- 外構・エクステリア
- 寝室
- トイレ
株式会社シンエイ・シンエイリフォーム
| 建物種別 | マンション |
|---|---|
| 改修規模 | 全面リフォーム |
| 築年数 | 築10年 |
| 工事面積 | 約18m2 |
| 施工期間 | 約75日 |
| 工事費 | 約30万円 |
| 地域 | 兵庫県 |
| 家族構成 | ご夫婦2人 |
| テーマ | 団らんキッチン、バリアフリー、明るい部屋、広々、その他 |
-
バルコニーには温かみのあるエクステリアタイルを敷き詰め、LDKと一体化したアウトドアリビングに。キッチンで料理しながら3人のお孫さんたちが楽しく遊ぶ姿が見えるようになった!
和室をリビングに取り込んだことによって、バルコニーも一体感ができました。殺風景なバルコニーにエクステリアタイルを敷き詰めるだけで、ガーデニングの楽しさが格段にアップします。ガーデンファニチャーの映えるくつろぎ空間が完成しました。
年齢を重ねても気持ちは若くいたいという想いがあり、そのためにはいきいきと楽しく暮らすことが必要と感じていた。生活感を感じさせないホテルライフのような空間づくりが、毎日楽しく暮らせる秘訣ではないかという思いがあった。その思いを叶えてもらえて、快適度120%。コロナ禍で半リタイヤ生活を迎え、逆にそれが追い風となって「おうち愛」が増し、更に家にいる時間を大切にしようという思いが強くなった。思った通り、若々しく毎日快適に過ごしている。
林 清華
終の棲家は年齢を重ねているからこそ毎日が楽しくなる空間にしたいとかねてから考えておられたK様。遠くに住んでおられる娘様ご夫婦の新居を参考に、ありきたりではなくこだわりのリフォームを目指されました。奥様のご要望でフロア材をスタイリッシュなグレーの石目調で全室統一され、ネイビー・グレー・ダークブラウンの3色を基調として次々に思い切ったデザインを選択されました。照明プランもこだわり、ホテルライクな居心地の良い空間が完成しました。
終の棲家は年齢を重ねているからこそ毎日が楽しくなる空間にしたいとかねてから考えておられたK様。遠くに住んでおられる娘様ご夫婦の新居を参考に、ありきたりではなくこだわりのリフォームを目指されました。奥様のご要望でフロア材をスタイリッシュなグレーの石目調で全室統一され、ネイビー・グレー・ダークブラウンの3色を基調として次々に思い切ったデザインを選択されました。照明プランもこだわり、ホテルライクな居心地の良い空間が完成しました。
殺風景なバルコニー。

バルコニーには温かみのあるエクステリアタイルを敷き詰め、LDKと一体化したアウトドアリビングに。キッチンで料理しながら3人のお孫さんたちが楽しく遊ぶ姿が見えるようになった!
●対面キッチンは吊戸があるため光が入りにくく閉鎖的で暗かった。●お手持ちのダイニングテーブルやソファを配置するにはリビングが狭い●広いバルコニーはゆったりしているが、殺風景。

●吊戸を撤去しフラット対面ペニンシュラ型キッチンにすることでLDとの一体感を持たせた。更に和室を取り込んで広々LDKに。●バルコニーにはエクステリアタイルを敷き詰めてLDKと一体的なアウトドアリビングに。





