第2の人生、リビング利用のメインは夫婦☆~一日のほとんどの時間を過ごすリビングを軸にこれからの人生をデザインする。
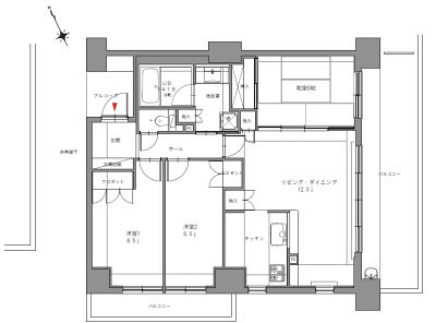
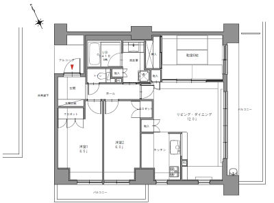
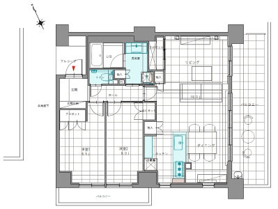
- 物件全体
- キッチン・ダイニング
- リビング
- 外構・エクステリア
- 寝室
- トイレ
株式会社シンエイ・シンエイリフォーム
| 建物種別 | マンション |
|---|---|
| 改修規模 | 全面リフォーム |
| 築年数 | 築10年 |
| 工事面積 | 約17m2 |
| 施工期間 | 約75日 |
| 工事費 | 約135万円 |
| 地域 | 兵庫県 |
| 家族構成 | ご夫婦2人 |
| テーマ | 団らんキッチン、バリアフリー、明るい部屋、広々、その他 |
-
和室の間仕切壁を取っ払ってリビングに取り込むことによって、広くゆったりとしたリビングが実現した。殺風景だった壁を、タイルや間接照明で演出することで、空間にメリハリができた。
-
和室を取り込んだことで開放的なリビングに!押入をリビング収納とし、襖を3枚連動引戸にしたことで、間口の3分の2が開放できるためとても便利に。
-
バルコニーから室内を望む
-
室内からバルコニーを望む
来客の多いK様ご夫妻。リビングのメインは「夫婦の快適性」とし、そこに来客やお孫様との関わりをプラスするプランとした。一日のほとんどの時間を過ごすリビング。和室をリビングに取込み一体化することで広いLDKが実現し、半リタイアのご主人様と一日中リビングに居てもお互いにプライベートを守りつつ、いい距離感が取れている。娘様やお孫様が里帰りされた時もソファを寄せてマットを敷くと寝室に早変わり。めったに使わない和室を区切っているより多くの目的に使えるようになった。
終の棲家は年齢を重ねているからこそ毎日が楽しくなる空間にしたいとかねてから考えておられたK様。遠くに住んでおられる娘様ご夫婦の新居を参考に、ありきたりではなくこだわりのリフォームを目指されました。奥様のご要望でフロア材をスタイリッシュなグレーの石目調で全室統一され、ネイビー・グレー・ダークブラウンの3色を基調として次々に思い切ったデザインを選択されました。照明プランもこだわり、ホテルライクな居心地の良い空間が完成しました。
ほとんど使うことのない和室。

和室の間仕切壁を取っ払ってリビングに取り込むことによって、広くゆったりとしたリビングが実現した。殺風景だった壁を、タイルや間接照明で演出することで、空間にメリハリができた。
広いバルコニーだが生かされていない。

和室を取り込んだことで開放的なリビングに!押入をリビング収納とし、襖を3枚連動引戸にしたことで、間口の3分の2が開放できるためとても便利に。

バルコニーから室内を望む

室内からバルコニーを望む
●対面キッチンは吊戸があるため光が入りにくく閉鎖的で暗かった。●お手持ちのダイニングテーブルやソファを配置するにはリビングが狭い●広いバルコニーはゆったりしているが、殺風景。

●吊戸を撤去しフラット対面ペニンシュラ型キッチンにすることでLDとの一体感を持たせた。更に和室を取り込んで広々LDKに。●バルコニーにはエクステリアタイルを敷き詰めてLDKと一体的なアウトドアリビングに。
- 内装ドア ベリティス
- 収納用建具 ベリティス
- 造作部材 ベリティス
- 床暖房 フリーほっと
- 照明器具





