兵庫県 Y様邸

プライベートリビング

コープ住宅(株)
お店の情報・お問い合わせ 
データ
建物種別 戸建て
改修規模 全面リフォーム
築年数 築20年
工事面積 約39m2
施工期間 約50日
工事費 約180万円
地域 兵庫県
家族構成 ご夫婦2人 と ワンちゃんネコちゃん
テーマ 明るい部屋、オール電化、ペット
お近くの「パナソニックの住まいパートナーズ」登録店
リフォームポイント

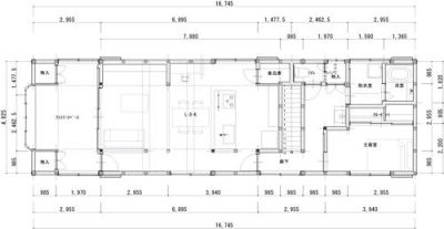
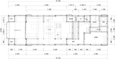
2階の全面改装だったので外からの視線を気にすることなく、ご夫婦とペットの為だけの空間となっています。間仕切建具を開けると広いLDKとして利用、間仕切ることで空調管理が出来るので共働きのご夫婦の外出時はワンちゃんネコちゃんだけでも快適に過ごせる空間に早変わり。また、将来は子ども部屋としても使えるので多用途に活かせるお部屋になっています。

お客様の声
元々と雰囲気がごろっと変わり、奥さま希望のブルー系もアクセントになっていてイメージ通りになりました。追加してもらった家具もコーディネートされていて部屋の雰囲気に合っていて良かったです。
担当者の声
福山 翔子

たくさんの計画プランの中からお二人の生活スタイルに合う間取りを選んで頂き、コーディネートは『こんな空間にしたい』というご要望がはっきりとお持ちでしたので、一緒に考えさせて頂けて楽しかったです。新しい生活のスタートもお手伝いをさせていただき光栄でした。
ビフォーアフター
ビフォー

暗い部屋。

アフター

広々としたLDK。

ビフォー

部屋を狭くする壁。

アフター

使い分けの出来る空間。

ビフォー

構造に配慮されていない間取り。

アフター

広く自由に使えるリビング。

ビフォー

構造に配慮されていない間取り。

アフター

間仕切ることで多用途に使える。

ビフォー

居室としての計画しかしていなかった為、水廻りが全く無い。息子夫婦の新生活の為の空間を作りたい。

アフター

水廻り設備を配置し、新居として生活できる空間をつくりました。 LDKを広くとり、将来は子ども部屋も確保できるよう計画した間取りになっています。

施工店情報
見なおし隊
コープ住宅(株)

〒655-0013
住所:兵庫県神戸市垂水区福田3-2-12
電話:0120-958-728 FAX:078-706-9321

■建設業 兵庫県知事 許可(特ー3)第111499号

お店の情報・お問い合わせ
コープ住宅(株)のリフォーム事例一覧
近くのお店を探す

Panasonicの住まい・くらし SNSアカウント