兵庫県 Y様邸

希望イメージとぴったり

コープ住宅(株)
お店の情報・お問い合わせ 
データ
建物種別 戸建て
改修規模 全面リフォーム
築年数 築20年
工事面積 約8.7m2
施工期間 約50日
工事費 約200万円
地域 兵庫県
家族構成 ご夫婦2人 と ワンちゃんネコちゃん
テーマ 明るい部屋、オール電化、ペット
お近くの「パナソニックの住まいパートナーズ」登録店
リフォームポイント

パナソニック・ラクシーナのカタログ表紙に一目惚れ。こんな空間にしたい!とパナソニックキッチンが中心で全体の空間が出来上がっていきました。すっきり見える空間ですが収納量もたっぷりあり、パントリーも配置しておりますので生活感を隠しながらも使い勝手の良いキッチンになりました。キッチンと合わせて入口の扉もコーディネート出来たので空間のまとまりもあり、部屋の真ん中辺りにあるキッチンで通常暗くなりがちですが清潔感のある明るいキッチンになりました。

お客様の声
元々と雰囲気がごろっと変わり、奥さま希望のブルー系もアクセントになっていてイメージ通りになりました。追加してもらった家具もコーディネートされていて部屋の雰囲気に合っていて良かったです。
担当者の声
福山 翔子

たくさんの計画プランの中からお二人の生活スタイルに合う間取りを選んで頂き、コーディネートは『こんな空間にしたい』というご要望がはっきりとお持ちでしたので、一緒に考えさせて頂けて楽しかったです。新しい生活のスタートもお手伝いをさせていただき光栄でした。
ビフォーアフター
ビフォー

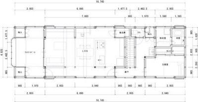
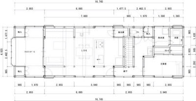
間取りの真ん中に階段があり、ゾーニングしにくい空間でした。

アフター

キッチンも床も扉も照明もパナソニック。だからこそ出来たまとまりのある空間。

ビフォー

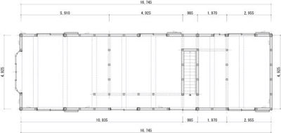
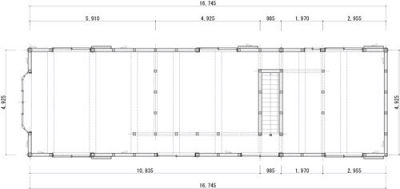
光を遮る壁。

アフター

補強箇所を検討することで広々とした空間を実現。キッチンから全体が見渡せて会話をしながら料理が楽しく出来そうです。

ビフォー

居室としての計画しかしていなかった為、水廻りが全く無い。息子夫婦の新生活の為の空間を作りたい。

アフター

水廻り設備を配置し、新居として生活できる空間をつくりました。 LDKを広くとり、将来は子ども部屋も確保できるよう計画した間取りになっています。

施工店情報
見なおし隊
コープ住宅(株)

〒655-0013
住所:兵庫県神戸市垂水区福田3-2-12
電話:0120-958-728 FAX:078-706-9321

■建設業 兵庫県知事 許可(特ー3)第111499号

お店の情報・お問い合わせ
コープ住宅(株)のリフォーム事例一覧
近くのお店を探す

Panasonicの住まい・くらし SNSアカウント