兵庫県 H様邸

!収納充実計画! ~収納力のキュビオスと、使い方に応じた改装計画~

サンカラーズリフォーム 西神パルティ
お店の情報・お問い合わせ 
データ
建物種別 マンション
改修規模 改装・設備交換
築年数 築18年
総工事面積 約46m2
施工期間 約20日
総工事費 約460万円
地域 兵庫県
テーマ 明るい部屋、広々、その他
お近くの「パナソニックの住まいパートナーズ」登録店
リフォームポイント

使用する物に応じた、使い勝手の良い収納リフォーム。
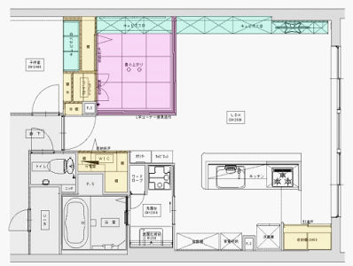
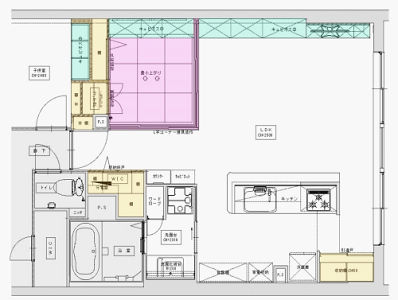
リビング・ダイニングには、壁一面にキュビオスを。ステレオを置く場所やCDの枚数など収納物を計画的に盛り込み、全面ながらも圧迫感なくスッキリとした収納充実プランに!ご夫妻の寝室用に設けた畳小上がり下も収納。子供室との取合収納には、畳小上がり側からお布団とご主人様のお洋服の出入れをご希望でしたので、それ以外の残りの空間も子供室から活用できるよう余すところなく空間を利用しました。その他にも、奥行が深く使いづらかったリビング入口横の収納2つ合わせてウォークインに、キッチン背面奥には可動棚と引違戸を設け、各箇所スッキリ収納できるようにしました。

ビフォーアフター
ビフォー

広々としたLDKでしたが、造作収納が少なく、家具の統一感が難しい空間となっていました。

アフター

一面キュビオスで収納スッキリ。既存の床や家具にマッチしたオーク柄で圧迫感もなく、統一感のあるLDKに。

ビフォー

アフター

畳小上がりの建具はVERITISの面材で造作。来客時や就寝時には扉を閉めて完全個室に。

ビフォー

LDKの一部に、寝室と収納を兼ねたスペースをご希望。

アフター

お布団のサイズを考慮して極力圧迫感が出ないよう計画した畳小上がり空間。L字に開くので普段は開放的に。取合収納は、お布団とご主人様のお洋服収納を計画。

ビフォー

工夫されて収納してましたが、よりスッキリ収納できる空間をご希望でした。

アフター

畳小上がりは、椅子の座面高で計画したので、机を持ってくれば、お子様がリビングで勉強することも。キュビオス下には建築化照明を仕込んで、雰囲気ある空間に。

ビフォー

アフター

キュビオスはTVだけでなく、ステレオ置き場やCDの枚数等も考慮してプランニング。全面キュビオスでも圧迫感なくスッキリ。

ビフォー

LDKはとても広々としたゆとりある空間でしたが、収納が少なく、家具の統一感も難しい空間になっていました。LDK唯一の収納2つも、奥行が深くて使いづらく、各箇所収納計画が必要な空間となっていました。

アフター

個室を子供室にするため、リビングに畳小上がりの和室空間を作って、ご夫妻の寝室に。壁一面のキュビオスで、LDKの収納力も充実しスッキリとした空間に。取合収納・既存のリビング収納・キッチン背面奥も、使い勝手良く改装しました。

施工店情報
見なおし隊
サンカラーズリフォーム 西神パルティ

〒651-2277
住所:兵庫県神戸市西区美賀多台9-2-2 パルティ内
電話:0120-454-031 FAX:078-996-1631

■建設業 建設業許可 兵庫県知事許可(般-2)第108842号

お店の情報・お問い合わせ
サンカラーズリフォーム 西神パルティのリフォーム事例一覧
近くのお店を探す

Panasonicの住まい・くらし SNSアカウント