人が集う、南向きのアイランドキッチン。最新の快適機能でお料理好きになりました!
有限会社鞍城建設
| 建物種別 | 戸建て |
|---|---|
| 改修規模 | 改装・設備交換 |
| 築年数 | 築38年 |
| 施工期間 | 約90日 |
| 地域 | 群馬県 |
| 家族構成 | 1世帯1人 |
| テーマ | 団らんキッチン、明るい部屋、その他 |
-
南向きの窓に面したキッチンをアイランドタイプに替え、カップボードを北側の壁に沿って設置。「キッチンがとても明るくなりました」とH様もお喜びです。キッチンのカラーと床色の組み合わせにもこだわられた結果、重厚感があるシンプルな空間になりました。
-
キッチン側とカップボードのカラーは白。家電製品や壁色も白一色で、統一感のある美しい空間に。収納スペースがたっぷりで、「余っているほど」とH様。奥のリビングとの間にあった扉を取り払った結果、LDKの一体感が出て、明るさもアップ。キッチンへの動線もよくなったそうです。
-
勝手口は廊下の壁を取り払ったことでダイニングの一角に。腰壁をつけて足元が見えないよう配慮しました。勝手口のドアからも日差しが入るようになり、暖かくなったそう。ダイニングが広く明るい空間になりました。
-
グリルのお料理のしやすさ、お掃除がラクなことにもびっくり。グリル用クッキング本のメニューを制覇しそうなほど、お料理好きに。「鶏肉が皮パリパリに焼けますし、ケーキも作れるんですよ! それもメニューに合わせてボタンを押すだけ。お掃除もさっと拭くだけですから」(H様)
-
ダストコーナーも大のお気に入り。生ごみ・燃えないごみ・空き缶などに分別し、そのままカップボードへ収納。「生ごみがリビングから見えないというのが、とてもうれしくて。「ラクシーナ」を採用する決め手になりました」
-
多いときには10人以上の人が集まるというH様邸。アイランドキッチンだと会話もスムーズに。全面ガラスのクックスクリーンは視界もさえぎることなく、油はねも防ぐのでお気に入りとか。
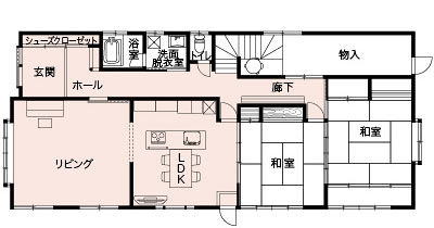
南向きに広いリビングとDKがあるH様邸ですが、個々の空間が壁で隔てられ、明るさを感じられないことに不満をお持ちでした。そこでリビングとDKの間のドアを取り払い、DKと和室の間にあった廊下との壁もなくして、DKを広げたところ、以前とは比べものにならないほど広く、明るい空間になりました。さらに古いキッチンを「ラクシーナ」のアイランドタイプにリフォーム。キッチンのまわりをお孫さんたちが駆け回る、開放的な間取りが誕生しました。
H様は私が子どもの頃からの知り合いで、今回のリフォームも何年も前からお話をいただいていました。
パナソニックのショウルームにお連れした際、「落ち着いたデザインが多い」と喜ばれ、「ラクシーナ」を選ばれました。他にも、暗くて寒い廊下をなくしてDKを広げた点や、玄関を格調高い空間に仕上げた点も喜んでいただけました。もともと当社は伝統的な和風建築を得意とする工務店ですが、最近では「大工のDNA」を発揮しながら住宅の最新トレンドも採り入れた今回のような事例も増えています。
南向きの窓に面したキッチンですが、お鍋やボウルが光を遮り、あまり明るく感じませんでした。

南向きの窓に面したキッチンをアイランドタイプに替え、カップボードを北側の壁に沿って設置。「キッチンがとても明るくなりました」とH様もお喜びです。キッチンのカラーと床色の組み合わせにもこだわられた結果、重厚感があるシンプルな空間になりました。

キッチン側とカップボードのカラーは白。家電製品や壁色も白一色で、統一感のある美しい空間に。収納スペースがたっぷりで、「余っているほど」とH様。奥のリビングとの間にあった扉を取り払った結果、LDKの一体感が出て、明るさもアップ。キッチンへの動線もよくなったそうです。

勝手口は廊下の壁を取り払ったことでダイニングの一角に。腰壁をつけて足元が見えないよう配慮しました。勝手口のドアからも日差しが入るようになり、暖かくなったそう。ダイニングが広く明るい空間になりました。

グリルのお料理のしやすさ、お掃除がラクなことにもびっくり。グリル用クッキング本のメニューを制覇しそうなほど、お料理好きに。「鶏肉が皮パリパリに焼けますし、ケーキも作れるんですよ! それもメニューに合わせてボタンを押すだけ。お掃除もさっと拭くだけですから」(H様)

ダストコーナーも大のお気に入り。生ごみ・燃えないごみ・空き缶などに分別し、そのままカップボードへ収納。「生ごみがリビングから見えないというのが、とてもうれしくて。「ラクシーナ」を採用する決め手になりました」

- キッチン ラクシーナ
- カップボード
- 床材 ジョイハードフロアー[終了品]
- フローリング:アーキスペックシリーズ





