千葉県 Y様邸
すみずみまであたたかい
夫婦二人のための住まいにリフォーム。
住マイルホーム株式会社
| 建物種別 | 戸建て |
|---|---|
| 改修規模 | 全面リフォーム |
| 築年数 | 築50年 |
| 施工期間 | 約120日 |
| 地域 | 千葉県 |
| 家族構成 | 1世帯2人 |
| テーマ | 団らんキッチン、明るい部屋、耐震、広々 |
-
冷え性の奥様にとって、「あたたかさが違う」酸素美泡湯はなによりの楽しみ。さらに入る前に床をあたためる「スゴぽかフロア」が、寒い季節に大活躍!「ヒートショックが怖いので、最初からお風呂があたたかいと安心感がありますね」とご主人も満足されておられるそう。
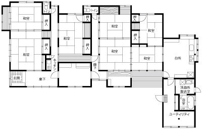
築約50年のお住まいは、土間の台所や田の字和室がある昔ながらの日本家屋。娘さんたちの独立とご主人の定年をきっかけに、大規模リフォームを決意されました。土間の台所は思い切って減築し、耐震性を高めるため、基礎や柱も補強し直しました。さらに、LDKや浴室・洗面脱衣室・トイレに床暖房を採用。寒くて暗かった空間が暖かく快適に生まれ変わりました。娘さんもときどき遊びに来られ、あたたかなリビングでご夫妻とともに過ごされるそうです。

娘から「夫婦ふたりだけの暮らしのために、いい家をつくってね」と背中を押されてリフォームに踏み切りました。あたたかな住まいにしたくて、4か所に床暖房を採用。施工前は「本当に必要なの?」と思いましたが、暮らしはじめたら大正解!若い頃のリフォームとは違う、「おとなのリフォーム」を実現できました。
営業部長 鈴木 美智子 様
Y様ご一家は東日本大震災でかなりの揺れを経験されました。そこで基礎からコンクリートを打ち直し、柱も相当数増やして補強。壁や天井に断熱材をたっぷり入れたため、夏の涼しさ・冬のあたたかさはもちろん、遮音性もよくなったと大変お喜びです。間取りや設備は、ご夫妻の暮らしやすさを最優先に考えました。千葉と東京・汐留のショウルームで、キッチン・浴室から照明・建具まで、すべての設備を決めていただいたのですが、奥様のご決断の早さが印象に残っています。「設備の進化で電気代も思ったほどかからない」「このリフォームに後悔なし!」と、うれしいお言葉もいただきました。
Y様ご一家は東日本大震災でかなりの揺れを経験されました。そこで基礎からコンクリートを打ち直し、柱も相当数増やして補強。壁や天井に断熱材をたっぷり入れたため、夏の涼しさ・冬のあたたかさはもちろん、遮音性もよくなったと大変お喜びです。間取りや設備は、ご夫妻の暮らしやすさを最優先に考えました。千葉と東京・汐留のショウルームで、キッチン・浴室から照明・建具まで、すべての設備を決めていただいたのですが、奥様のご決断の早さが印象に残っています。「設備の進化で電気代も思ったほどかからない」「このリフォームに後悔なし!」と、うれしいお言葉もいただきました。

冷え性の奥様にとって、「あたたかさが違う」酸素美泡湯はなによりの楽しみ。さらに入る前に床をあたためる「スゴぽかフロア」が、寒い季節に大活躍!「ヒートショックが怖いので、最初からお風呂があたたかいと安心感がありますね」とご主人も満足されておられるそう。

このリフォームで採用したパナソニック商品
- 床暖房 温水式You 温すい
- バスルーム リフォムス





