大分県 U様

ゆったり過ごせる開放的な住まいに。
エコキュートとIHでエコリフォーム。

(有)丸萬
お店の情報・お問い合わせ 
データ
建物種別 戸建て
築年数 築28年
総工事面積 約36m2
施工期間 約30日
地域 大分県
家族構成 一世帯2人
テーマ 自然素材、その他
お近くの「パナソニックの住まいパートナーズ」登録店
リフォームポイント

省エネをはじめ、掃除や片付けがラクな暮らしを願われて、
この先ずっと、のびのび過ごせる空間にリフォーム。
お孫さんと過ごす時間を存分に楽しめる住まいになりました。

お客様の声
夫婦二人暮らしですが、週末に遊びに来る息子の家族とのびのび過ごしたいと思い、リフォームすることに。使いやすく開放的な住まいになって、孫たちが泊まりにくるのを楽しみにしています。
担当者の声
(有)丸萬 代表取締役 秋田 泰義 様

「信頼と安心・人にやさしい住まいづくり」をモットーに、ご要望だった省エネや家事ラクを叶えるプランをご提案しました。自社ショウルームで最新商品をご覧いただいたので、早い段階で具体的なイメージを描きながらリフォームを進められたのだと思います。
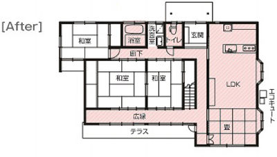
ビフォーアフター
ビフォー

アフター

リフォームを動画で紹介

担当者の声

このリフォームで採用したパナソニック商品
施工店情報
見なおし隊
(有)丸萬

〒873-0421
住所:大分県国東市武蔵町糸原478-1
電話:0978-68-1141 FAX:0978-68-1143

お店の情報・お問い合わせ
(有)丸萬のリフォーム事例一覧
近くのお店を探す

Panasonicの住まい・くらし SNSアカウント